Woning Hagelstege 25 Den Ham (OV)

Hagelstege 25, 7683CH Den Ham (OV)

Ontvang updates voor Den Ham

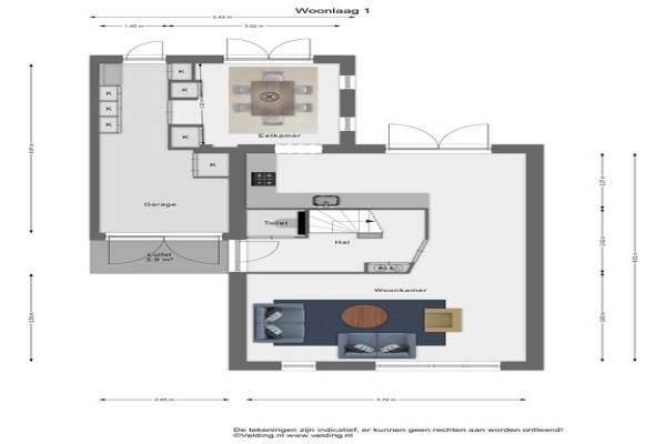
Het adres van deze woning uit 2006 is Hagelstege 25 te Den Ham (OV). Het pand heeft een oppervlakte van 136m² en een perceeloppervlakte van 240m² en heeft 6 kamers kamers waarvan 4 slaapkamers. De geschatte waarde van deze woning is € 335.000.

Bekijk alle woningen in Den Ham

Gegevens van Eengezinswoning

Bouwjaar
2006
Geschatte waarde
€ 335.000
Oppervlakte
136 m2
Inhoud
555 m3
Aantal kamers
6 kamers
Slaapkamers
4
Badkamers
1 badkamer en 1 apart toilet
Soort bouw
Bestaande bouw
Eigendomssituatie
Volle eigendom
Ligging
Aan rustige weg, in woonwijk en vrij uitzicht

Voorzieningen in de buurt

Boodschappen0,3 km
Grote supermarkt0,5 km
Cafetaria0,4 km
Restaurant0,3 km
Huisarts0,5 km
Ziekenhuis9,7 km
Kinderdagverblijf0,5 km
BSO0,5 km
Alle voorzieningen in Den Ham

Binnenkijken bij Hagelstege 25 te Den Ham (OV)

Meer meldingen in deze omgeving

Binnenlands nieuws
Zaterdag 30-5-2026
Den Ham

Binnenlands nieuws
Zaterdag 30-5-2026
Den Ham

112 melding
Zondag 24-5-2026 om 10:12
Esweg, Den Ham

112 melding
Donderdag 21-5-2026 om 08:37
Molenstraat, Den Ham

112 melding
Donderdag 21-5-2026 om 08:37
Molenstraat, Den Ham

112 melding
Woensdag 20-5-2026 om 15:46
Vroomshoopseweg, Den Ham

112 melding
Woensdag 20-5-2026 om 15:46
Vroomshoopseweg, Den Ham

Onroerend goed
Woensdag 13-5-2026
Brink 13, 7683BP Den Ham (OV)

Direct een e-mail ontvangen bij nieuwe meldingen in deze regio?

Meld je dan GRATIS aan voor de Oozo Alert service voor Den Ham

Instellen

Meer nieuws in Den Ham

Weten hoe eenvoudig het is om af te vallen? Zonder pillen en smeersels en zonder je in het zweet te werken!
Kijk op eenvoudig-afvallen.nl

© 2012 - 2026 OOZO.nl - info@oozo.nl - Gegevens verwijderen? | Disclaimer | Privacy statement