Woning Rutershoek 3 DEN HAM OV

Rutershoek 3, 7683CP DEN HAM OV

Ontvang updates voor Den Ham

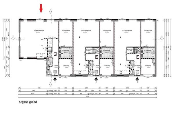
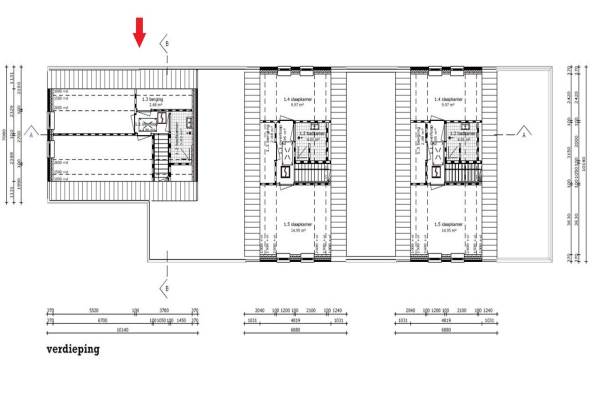
Het adres van deze woning uit 2022 is Rutershoek 3 te DEN HAM OV. Het pand heeft een oppervlakte van 124m² en een perceeloppervlakte van 309m² en heeft 4 kamers kamers waarvan 3 slaapkamers. De geschatte waarde van deze woning is € 549.000.

Bekijk alle woningen in Den Ham

Gegevens van Geschakelde woning

Bouwjaar
2022
Geschatte waarde
€ 549.000
Oppervlakte
124 m2
Inhoud
562 m3
Aantal kamers
4 kamers
Slaapkamers
3
Tuin
Tuin

Voorzieningen in de buurt

Boodschappen0,3 km
Grote supermarkt0,5 km
Cafetaria0,4 km
Restaurant0,3 km
Huisarts0,5 km
Ziekenhuis9,7 km
Kinderdagverblijf0,5 km
BSO0,5 km
Alle voorzieningen in Den Ham

Binnenkijken bij Rutershoek 3 te DEN HAM OV

Meer meldingen in deze omgeving

Nieuw bedrijf
Oktober 2025
Kroezenhoek 8, 7683PM Den Ham

Nieuw bedrijf
Oktober 2025
Kroezenhoek 8, 7683PM Den Ham

Binnenkijken bij
Woensdag 29-10-2025
De Larinck 4, 7683CB Den Ham (OV)

Nieuw bedrijf
Oktober 2025
Brink 11, 7683BP Den Ham

Binnenlands nieuws
Dinsdag 28-10-2025
Den Ham

Binnenlands nieuws
Woensdag 22-10-2025
Den Ham

112 melding
Zaterdag 18-10-2025 om 10:08
Dorpsstraat, Den Ham


Direct een e-mail ontvangen bij nieuwe meldingen in deze regio?

Meld je dan GRATIS aan voor de Oozo Alert service voor Den Ham

Instellen

Meer nieuws in Den Ham

Weten hoe eenvoudig het is om af te vallen? Zonder pillen en smeersels en zonder je in het zweet te werken!
Kijk op eenvoudig-afvallen.nl

© 2012 - 2025 OOZO.nl - info@oozo.nl - Gegevens verwijderen? | Disclaimer | Privacy statement