Woning Zomerweg 8 Den Ham Ov

Zomerweg 8, 7683PP Den Ham Ov

Ontvang updates voor Den Ham

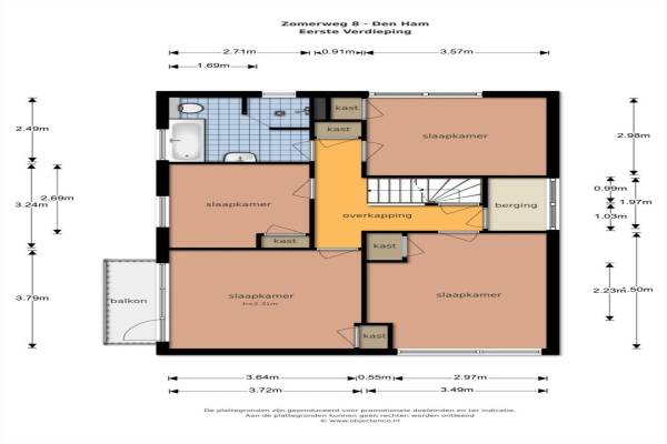
Het adres van deze woning uit 1963 is Zomerweg 8 te Den Ham Ov. Het pand heeft een oppervlakte van 142m² en een perceeloppervlakte van 1382m² en heeft 5 kamers kamers waarvan 4 slaapkamers. De geschatte waarde van deze woning is € 319.000.

Bekijk alle woningen in Den Ham

Gegevens van Eengezinswoning, vrijstaande woning

Bouwjaar
1963
Geschatte waarde
€ 319.000
Oppervlakte
142 m2
Inhoud
593 m3
Aantal kamers
5 kamers
Slaapkamers
4
Badkamers
1 apart toilet
Soort bouw
Bestaande bouw
Eigendomssituatie
Volle eigendom
Tuin
Achtertuin
Achtertuin
950 m² (68m diep en 14m breed)

Voorzieningen in de buurt

Boodschappen0,3 km
Grote supermarkt0,5 km
Cafetaria0,4 km
Restaurant0,3 km
Huisarts0,5 km
Ziekenhuis9,7 km
Kinderdagverblijf0,5 km
BSO0,5 km
Alle voorzieningen in Den Ham

Binnenkijken bij Zomerweg 8 te Den Ham Ov

Meer meldingen in deze omgeving

Binnenkijken bij
Vrijdag 14-11-2025
Blesdijk 12, 7683CE Den Ham (OV)

Nieuw bedrijf
November 2025
Grotestraat 52, 7683BC Den Ham

Nieuw bedrijf
November 2025
Dorpsstraat 42, 7683BK Den Ham

Nieuw bedrijf
November 2025
Schapendijk 5, 7683PK Den Ham

Nieuw bedrijf
November 2025
Kroezenhoek 8, 7683PM Den Ham

Nieuw bedrijf
November 2025
Kroezenhoek 8, 7683PM Den Ham

Nieuw bedrijf
November 2025
Molenstraat 11, 7683VC Den Ham

Nieuw bedrijf
November 2025
Roggestraat 32, 7683AJ Den Ham

Direct een e-mail ontvangen bij nieuwe meldingen in deze regio?

Meld je dan GRATIS aan voor de Oozo Alert service voor Den Ham

Instellen

Meer nieuws in Den Ham

Weten hoe eenvoudig het is om af te vallen? Zonder pillen en smeersels en zonder je in het zweet te werken!
Kijk op eenvoudig-afvallen.nl

© 2012 - 2025 OOZO.nl - info@oozo.nl - Gegevens verwijderen? | Disclaimer | Privacy statement