Woning Akker 25 Vriezenveen

Akker 25, 7671NJ Vriezenveen

Ontvang updates voor Toekomstig bestemmingsplan Noord

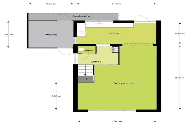
Het adres van deze woning uit 1990 is Akker 25 te Vriezenveen. Het pand heeft een oppervlakte van 150m² en een perceeloppervlakte van 224m² en heeft 5 kamers kamers waarvan 4 slaapkamers. De geschatte waarde van deze woning is € 264.500.

Bekijk alle woningen in Toekomstig bestemmingsplan Noord

Gegevens van Eengezinswoning, 2-onder-1-kapwoning

Bouwjaar
1990
Geschatte waarde
€ 264.500
Oppervlakte
150 m2
Inhoud
480 m3
Aantal kamers
5 kamers
Slaapkamers
4
Badkamers
1 badkamer
Soort bouw
Bestaande bouw
Eigendomssituatie
Volle eigendom
Ligging
Aan rustige weg, in woonwijk, vrij uitzicht en landelijk gelegen
Tuin
Achtertuin

Voorzieningen in de buurt

Boodschappen0,8 km
Grote supermarkt0,8 km
Cafetaria0,8 km
Restaurant1,3 km
Huisarts0,9 km
Ziekenhuis6,1 km
Kinderdagverblijf1,1 km
BSO1,2 km
Alle voorzieningen in Toekomstig bestemmingsplan Noord

Binnenkijken bij Akker 25 te Vriezenveen

Meer meldingen in deze omgeving

Binnenkijken bij
Vrijdag 28-11-2025
Welhaak 36, 7672AB Vriezenveen

Nieuw bedrijf
November 2025
E. Nijen Twilhaarstraat 9, 7671MG Vriezenveen

Nieuw bedrijf
November 2025
Esrand 9, 7672BE Vriezenveen

Binnenkijken bij
Dinsdag 25-11-2025
Karel Schaapstraat 12, 7672AK Vriezenveen

Binnenkijken bij
Vrijdag 21-11-2025
Beekdal 23, 7672BB Vriezenveen

Binnenkijken bij
Vrijdag 21-11-2025
Esrand 44, 7672BE Vriezenveen

Nieuw bedrijf
November 2025
Garvesingel 17, 7672AA Vriezenveen

112 melding
Maandag 17-11-2025 om 07:46
Garvesingel, Vriezenveen

Direct een e-mail ontvangen bij nieuwe meldingen in deze regio?

Meld je dan GRATIS aan voor de Oozo Alert service voor Toekomstig bestemmingsplan Noord

Instellen

Meer nieuws in Toekomstig bestemmingsplan Noord

Weten hoe eenvoudig het is om af te vallen? Zonder pillen en smeersels en zonder je in het zweet te werken!
Kijk op eenvoudig-afvallen.nl

© 2012 - 2025 OOZO.nl - info@oozo.nl - Gegevens verwijderen? | Disclaimer | Privacy statement