Woning Kloosterlaan 21 Burgum

Kloosterlaan 21, 9251MD Burgum

Ontvang updates voor Burgum

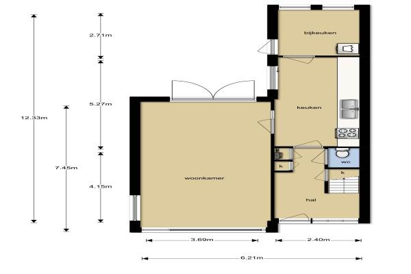
Het adres van deze woning uit 1973 is Kloosterlaan 21 te Burgum. Het pand heeft een oppervlakte van 125m² en een perceeloppervlakte van 231m² en heeft 5 kamers kamers waarvan 1 slaapkamers. De geschatte waarde van deze woning is € 222.000.

Bekijk alle woningen in Burgum

Gegevens van Eengezinswoning, 2-onder-1-kapwoning

Bouwjaar
1973
Geschatte waarde
€ 222.000
Oppervlakte
125 m2
Inhoud
435 m3
Aantal kamers
5 kamers
Slaapkamers
1
Badkamers
1 badkamer en 1 apart toilet
Soort bouw
Bestaande bouw
Eigendomssituatie
Volle eigendom
Ligging
In woonwijk en vrij uitzicht
Tuin
Achtertuin en voortuin
Achtertuin
66 m² (11m diep en 6m breed)

Voorzieningen in de buurt

Boodschappen0,8 km
Grote supermarkt0,8 km
Cafetaria0,9 km
Restaurant0,9 km
Huisarts1,3 km
Ziekenhuis16,1 km
Kinderdagverblijf0,6 km
BSO0,6 km
Alle voorzieningen in Burgum

Binnenkijken bij Kloosterlaan 21 te Burgum

Meer meldingen in deze omgeving

Binnenkijken bij
Zondag 19-10-2025
Burgemeester van Panhuyslaan 15, 9251KN Burgum

112 melding
Zaterdag 18-10-2025 om 22:23
Prinses Margrietstraat, Burgum

Nieuw bedrijf
Oktober 2025
Harmen Sytstrasingel 48, 9251CC Burgum

Nieuw bedrijf
Oktober 2025
Prins Bernhardstraat 18, 9251GP Burgum

112 melding
Woensdag 15-10-2025 om 19:57
Burgemeester van Panhuyslaan, Burgum

Faillissement
Dinsdag 14-10-2025
Mr W M Oppedk van Veenwg 40, 9251GA BURGUM

Faillissement
Dinsdag 14-10-2025
Mr. W.M. Oppedijk van Veenweg 40, 9251GA Burgum

Binnenkijken bij
Zondag 12-10-2025
Kloosterlaan 18, 9251MD Burgum

Direct een e-mail ontvangen bij nieuwe meldingen in deze regio?

Meld je dan GRATIS aan voor de Oozo Alert service voor Burgum

Instellen

Meer nieuws in Burgum

Weten hoe eenvoudig het is om af te vallen? Zonder pillen en smeersels en zonder je in het zweet te werken!
Kijk op eenvoudig-afvallen.nl

© 2012 - 2025 OOZO.nl - info@oozo.nl - Gegevens verwijderen? | Disclaimer | Privacy statement