Woning Easter Omwei 19 Hurdegaryp

Easter Omwei 19, 9254GM Hurdegaryp

Ontvang updates voor Hurdegaryp

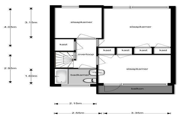
Het adres van deze woning uit 1972 is Easter Omwei 19 te Hurdegaryp. Het pand heeft een oppervlakte van 125m² en een perceeloppervlakte van 225m² en heeft 5 kamers kamers waarvan 4 slaapkamers. De geschatte waarde van deze woning is € 145.000.

Bekijk alle woningen in Hurdegaryp

Gegevens van Eengezinswoning, hoekwoning

Bouwjaar
1972
Geschatte waarde
€ 145.000
Oppervlakte
125 m2
Inhoud
375 m3
Aantal kamers
5 kamers
Slaapkamers
4
Badkamers
1 badkamer en 1 apart toilet
Soort bouw
Bestaande bouw
Eigendomssituatie
Volle eigendom
Ligging
In woonwijk
Tuin
Achtertuin, voortuin en zijtuin
Achtertuin
117 m² (13m diep en 9m breed)

Voorzieningen in de buurt

Boodschappen0,6 km
Grote supermarkt0,6 km
Cafetaria0,6 km
Restaurant0,8 km
Huisarts0,9 km
Ziekenhuis12,2 km
Kinderdagverblijf0,8 km
BSO0,8 km
Alle voorzieningen in Hurdegaryp

Binnenkijken bij Easter Omwei 19 te Hurdegaryp

Meer meldingen in deze omgeving

112 melding
Zondag 30-11-2025 om 13:39
Fuormanderij, 9254GS Hurdegaryp

Nieuw bedrijf
November 2025
Van Helsdingenstraat 19, 9254CC Hurdegaryp

Nieuw bedrijf
November 2025
Stationsweg 33, 9254HA Hurdegaryp

Binnenkijken bij
Vrijdag 21-11-2025
De Ljurk 11, 9254CW Hurdegaryp

Nieuw bedrijf
November 2025
Koaikamp 59, 9254EL Hurdegaryp

Binnenkijken bij
Woensdag 19-11-2025
Kobbeflecht 125, 9254AD Hurdegaryp

Nieuw bedrijf
November 2025
Reidroas 4B, 9254JR Hurdegaryp

Binnenkijken bij
Dinsdag 11-11-2025
Gaelekamp 47, 9254EP Hurdegaryp

Direct een e-mail ontvangen bij nieuwe meldingen in deze regio?

Meld je dan GRATIS aan voor de Oozo Alert service voor Hurdegaryp

Instellen

Meer nieuws in Hurdegaryp

Weten hoe eenvoudig het is om af te vallen? Zonder pillen en smeersels en zonder je in het zweet te werken!
Kijk op eenvoudig-afvallen.nl

© 2012 - 2025 OOZO.nl - info@oozo.nl - Gegevens verwijderen? | Disclaimer | Privacy statement