Woning Orgellaan 31 Uden

Orgellaan 31, 5402PD Uden

Ontvang updates voor Bitswijk

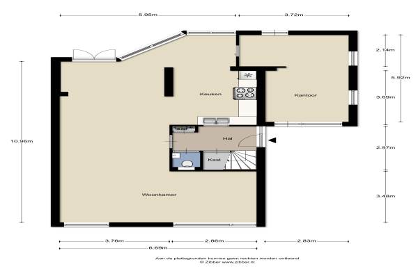
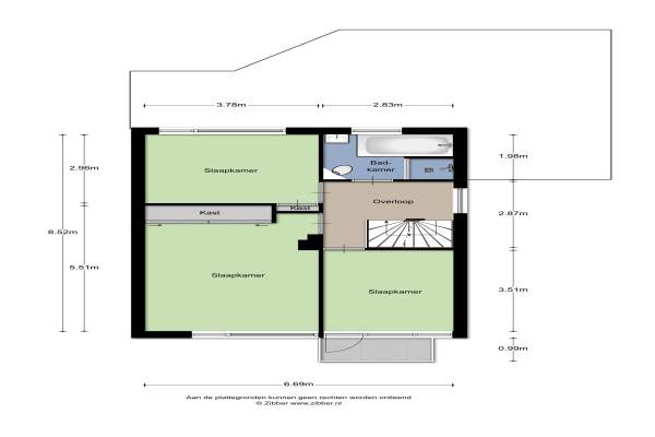
Het adres van deze woning uit 1971 is Orgellaan 31 te Uden. Het pand heeft een oppervlakte van 240m² en een perceeloppervlakte van 410m² en heeft 6 kamers kamers waarvan 4 slaapkamers. De geschatte waarde van deze woning is € 359.000.

Bekijk alle woningen in Bitswijk

Gegevens van Eengezinswoning, 2-onder-1-kapwoning

Bouwjaar
1971
Geschatte waarde
€ 359.000
Oppervlakte
240 m2
Inhoud
663 m3
Aantal kamers
6 kamers
Slaapkamers
4
Badkamers
1 badkamer en 1 apart toilet
Soort bouw
Bestaande bouw
Eigendomssituatie
Volle eigendom
Ligging
Aan park, aan rustige weg, in woonwijk en vrij uitzicht
Tuin
Achtertuin, voortuin en zijtuin
Achtertuin
175 m² (10m diep en 17,5m breed)

Voorzieningen in de buurt

Boodschappen0,9 km
Grote supermarkt0,5 km
Cafetaria0,5 km
Restaurant1,1 km
Huisarts0,8 km
Ziekenhuis1,2 km
Kinderdagverblijf0,4 km
BSO0,4 km
Alle voorzieningen in Bitswijk

Binnenkijken bij Orgellaan 31 te Uden

Meer meldingen in deze omgeving

Nieuw bedrijf
November 2025
Bitswijk 6M, 5401JB Uden

Nieuw bedrijf
November 2025
Tamboerijnstraat 16, 5402HX Uden

Nieuw bedrijf
November 2025
Mandolinestraat 39, 5402CX Uden

Nieuw bedrijf
November 2025
Gitaarstraat 5, 5402DB Uden

Binnenkijken bij
Vrijdag 14-11-2025
Triangelstraat 40, 5402JB Uden

Nieuw bedrijf
November 2025
Saxofoonstraat 108, 5402CH Uden

Nieuw bedrijf
November 2025
Vioolstraat 20, 5402AV Uden

Nieuw bedrijf
November 2025
Heinsbergenstraat 52, 5402EG Uden

Direct een e-mail ontvangen bij nieuwe meldingen in deze regio?

Meld je dan GRATIS aan voor de Oozo Alert service voor Bitswijk

Instellen

Meer nieuws in Bitswijk

Weten hoe eenvoudig het is om af te vallen? Zonder pillen en smeersels en zonder je in het zweet te werken!
Kijk op eenvoudig-afvallen.nl

© 2012 - 2025 OOZO.nl - info@oozo.nl - Gegevens verwijderen? | Disclaimer | Privacy statement