Woning Telingstraat 1 Utrecht

Telingstraat 1, 3512GV Utrecht

Ontvang updates voor Domplein, Neude, Janskerkhof

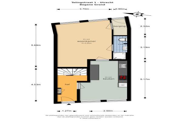
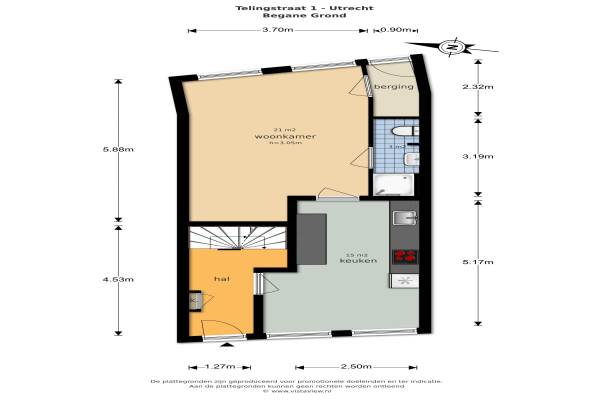
Het adres van deze woning is Telingstraat 1 te Utrecht. Het pand heeft een oppervlakte van 174m² en een perceeloppervlakte van 72m² en heeft 7 kamers kamers waarvan 4 slaapkamers. De geschatte waarde van deze woning is € 700.000.

Bekijk alle woningen in Domplein, Neude, Janskerkhof

Gegevens van Herenhuis, geschakelde woning

Geschatte waarde
€ 700.000
Oppervlakte
174 m2
Inhoud
752 m3
Aantal kamers
7 kamers
Slaapkamers
4
Badkamers
2 badkamers en 1 apart toilet
Soort bouw
Bestaande bouw
Eigendomssituatie
Eigendom belast met erfpacht
Ligging
Aan rustige weg, in centrum en in woonwijk

Voorzieningen in de buurt

Boodschappen0,1 km
Grote supermarkt0,2 km
Cafetaria0,1 km
Restaurant0,0 km
Huisarts0,4 km
Ziekenhuis2,1 km
Kinderdagverblijf0,2 km
BSO0,4 km
Alle voorzieningen in Domplein, Neude, Janskerkhof

Binnenkijken bij Telingstraat 1 te Utrecht

Meer meldingen in deze omgeving

112 melding
Zondag 10-5-2026 om 19:06
Korte Jansstraat, Utrecht

Binnenkijken bij
Dinsdag 5-5-2026
Oudegracht 150BSA, 3511AZ Utrecht

Binnenkijken bij
Dinsdag 5-5-2026
Annastraat 3, 3512GP Utrecht

112 melding
Dinsdag 5-5-2026 om 09:55
Domplein, Utrecht

112 melding
Dinsdag 5-5-2026 om 09:55
Domplein, Utrecht

Binnenkijken bij
Vrijdag 1-5-2026
Voorstraat 15B, 3512AH Utrecht

Nieuw bedrijf
Mei 2026
Boothstraat 18, 3512BW Utrecht

Nieuw bedrijf
Mei 2026
Voorstraat 3B, 3512AH Utrecht

Direct een e-mail ontvangen bij nieuwe meldingen in deze regio?

Meld je dan GRATIS aan voor de Oozo Alert service voor Domplein, Neude, Janskerkhof

Instellen

Meer nieuws in Domplein, Neude, Janskerkhof

Weten hoe eenvoudig het is om af te vallen? Zonder pillen en smeersels en zonder je in het zweet te werken!
Kijk op eenvoudig-afvallen.nl

© 2012 - 2026 OOZO.nl - info@oozo.nl - Gegevens verwijderen? | Disclaimer | Privacy statement