Woning Satijnvlinder 31 Utrecht

Satijnvlinder 31, 3544VX Utrecht

Ontvang updates voor Het Zand-Oost

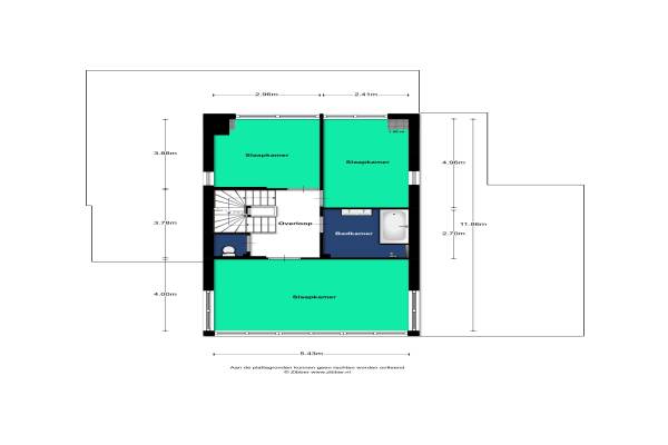
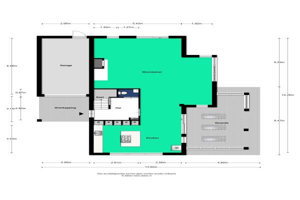
Het adres van deze woning uit 2006 is Satijnvlinder 31 te Utrecht. Het pand heeft een oppervlakte van 207m² en een perceeloppervlakte van 520m² en heeft 6 kamers kamers waarvan 5 slaapkamers. De geschatte waarde van deze woning is € 775.000.

Bekijk alle woningen in Het Zand-Oost

Gegevens van Eengezinswoning, vrijstaande woning

Bouwjaar
2006
Geschatte waarde
€ 775.000
Oppervlakte
207 m2
Inhoud
816 m3
Aantal kamers
6 kamers
Slaapkamers
5
Badkamers
2 badkamers en 2 aparte toiletten
Soort bouw
Bestaande bouw
Eigendomssituatie
Gemeentelijk eigendom belast met erfpacht
Ligging
Aan water, aan rustige weg en in woonwijk
Tuin
Achtertuin, voortuin en zijtuin
Achtertuin
104 m² (6,5m diep en 16m breed)

Voorzieningen in de buurt

Boodschappen0,8 km
Grote supermarkt0,9 km
Cafetaria0,7 km
Restaurant0,9 km
Huisarts0,7 km
Ziekenhuis1,7 km
Kinderdagverblijf0,4 km
BSO0,4 km
Alle voorzieningen in Het Zand-Oost

Binnenkijken bij Satijnvlinder 31 te Utrecht

Meer meldingen in deze omgeving

Nieuw bedrijf
December 2025
Vogelvlinderweg 7, 3544NJ Utrecht

Binnenkijken bij
Zondag 7-12-2025
Willem Frederik Hermansstraat 364, 3544KP Utrecht

Binnenkijken bij
Vrijdag 5-12-2025
Gerard Revestraat 120, 3544KK Utrecht

Nieuw bedrijf
December 2025
Purpervlinderstraat 55, 3544VZ Utrecht

Nieuw bedrijf
December 2025
Pauwoogvlinder 68, 3544DB Utrecht

Binnenkijken bij
Zaterdag 29-11-2025
Agaatvlindersingel 78, 3544ZB Utrecht

Nieuw bedrijf
November 2025
Johanniterweg 1C, 3544ND Utrecht

Nieuw bedrijf
November 2025
Plantenkasstraat 21, 3544JD Utrecht

Direct een e-mail ontvangen bij nieuwe meldingen in deze regio?

Meld je dan GRATIS aan voor de Oozo Alert service voor Het Zand-Oost

Instellen

Meer nieuws in Het Zand-Oost

Weten hoe eenvoudig het is om af te vallen? Zonder pillen en smeersels en zonder je in het zweet te werken!
Kijk op eenvoudig-afvallen.nl

© 2012 - 2025 OOZO.nl - info@oozo.nl - Gegevens verwijderen? | Disclaimer | Privacy statement