Woning Mr. Tripkade 53 Utrecht

Mr. Tripkade 53, 3571SW Utrecht

Ontvang updates voor Tuindorp en Van Lieflandlaan-West

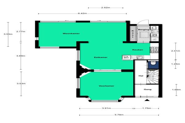
Het adres van deze woning uit 1936 is Mr. Tripkade 53 te Utrecht. Het pand heeft een oppervlakte van 146m² en een perceeloppervlakte van 449m² en heeft 6 kamers kamers waarvan 4 slaapkamers. De geschatte waarde van deze woning is € 750.000.

Bekijk alle woningen in Tuindorp en Van Lieflandlaan-West

Gegevens van Herenhuis, 2-onder-1-kapwoning

Bouwjaar
1936
Geschatte waarde
€ 750.000
Oppervlakte
146 m2
Inhoud
526 m3
Aantal kamers
6 kamers
Slaapkamers
4
Badkamers
1 badkamer en 1 apart toilet
Soort bouw
Bestaande bouw
Eigendomssituatie
Zie akte
Ligging
In centrum
Tuin
Achtertuin, voortuin en zijtuin
Achtertuin
210 m² (15m diep en 14m breed)

Voorzieningen in de buurt

Boodschappen0,7 km
Grote supermarkt0,8 km
Cafetaria0,4 km
Restaurant0,8 km
Huisarts0,6 km
Ziekenhuis1,6 km
Kinderdagverblijf0,3 km
BSO0,3 km
Alle voorzieningen in Tuindorp en Van Lieflandlaan-West

Binnenkijken bij Mr. Tripkade 53 te Utrecht

Meer meldingen in deze omgeving

Binnenkijken bij
Dinsdag 11-11-2025
Van Lieflandlaan 83, 3571AA Utrecht

Binnenkijken bij
Dinsdag 11-11-2025
Burgemeester van der Voort van Zijplaan 46, 3571VX Utrecht

Binnenkijken bij
Dinsdag 11-11-2025
Rauwenhofflaan 158, 3571HM Utrecht

Nieuw bedrijf
November 2025
Prof. Ritzema Boslaan 19, 3571CM Utrecht

Nieuw bedrijf
November 2025
Prof. Ritzema Boslaan 46, 3571CT Utrecht

Nieuw bedrijf
November 2025
Dr. H.J. Lovinklaan 6, 3571WD Utrecht

Nieuw bedrijf
November 2025
Eykmanlaan 427, 3571JR Utrecht

Nieuw bedrijf
November 2025
Prof. Adolf Mayerlaan 1, 3571TG Utrecht

Direct een e-mail ontvangen bij nieuwe meldingen in deze regio?

Meld je dan GRATIS aan voor de Oozo Alert service voor Tuindorp en Van Lieflandlaan-West

Instellen

Meer nieuws in Tuindorp en Van Lieflandlaan-West

Weten hoe eenvoudig het is om af te vallen? Zonder pillen en smeersels en zonder je in het zweet te werken!
Kijk op eenvoudig-afvallen.nl

© 2012 - 2025 OOZO.nl - info@oozo.nl - Gegevens verwijderen? | Disclaimer | Privacy statement