Woning Johannes de Bekastraat 35 Utrecht

Johannes de Bekastraat 35, 3514 V Utrecht

Ontvang updates voor Tuinwijk-Oost

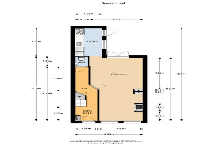
Het adres van deze woning uit 1906 is Johannes de Bekastraat 35 te Utrecht. Het pand heeft een oppervlakte van 120m² en een perceeloppervlakte van 77m² en heeft 6 kamers kamers waarvan 5 slaapkamers. De geschatte waarde van deze woning is € 565.000.

Bekijk alle woningen in Tuinwijk-Oost

Gegevens van Eengezinswoning, tussenwoning

Bouwjaar
1906
Geschatte waarde
€ 565.000
Oppervlakte
120 m2
Inhoud
455 m3
Aantal kamers
6 kamers
Slaapkamers
5
Badkamers
1 badkamer en 1 apart toilet
Soort bouw
Bestaande bouw
Eigendomssituatie
Volle eigendom
Ligging
In woonwijk
Tuin
Achtertuin

Voorzieningen in de buurt

Boodschappen0,2 km
Grote supermarkt0,3 km
Cafetaria0,2 km
Restaurant0,1 km
Huisarts0,3 km
Ziekenhuis2,0 km
Kinderdagverblijf0,4 km
BSO0,5 km
Alle voorzieningen in Tuinwijk-Oost

Binnenkijken bij Johannes de Bekastraat 35 te Utrecht

Meer meldingen in deze omgeving

Nieuw bedrijf
April 2026
Van Musschenbroekstraat 38, 3514XL Utrecht

Nieuw bedrijf
April 2026
Zaagmolenkade 44BS, 3515AE Utrecht

Binnenkijken bij
Donderdag 16-4-2026
Pieter Nieuwlandstraat 61, 3514HD Utrecht

Binnenkijken bij
Donderdag 16-4-2026
Grifthoek 102, 3514JJ Utrecht

Binnenkijken bij
Dinsdag 14-4-2026
Zaagmolenkade 22, 3515AC Utrecht

Nieuw bedrijf
April 2026
Pieter Nieuwlandstraat 96, 3514HL Utrecht

Nieuw bedrijf
April 2026
Willem van Noortstraat 43, 3514GB Utrecht

Binnenkijken bij
Woensdag 8-4-2026
Bosschastraat 3, 3514HN Utrecht

Direct een e-mail ontvangen bij nieuwe meldingen in deze regio?

Meld je dan GRATIS aan voor de Oozo Alert service voor Tuinwijk-Oost

Instellen

Meer nieuws in Tuinwijk-Oost

Weten hoe eenvoudig het is om af te vallen? Zonder pillen en smeersels en zonder je in het zweet te werken!
Kijk op eenvoudig-afvallen.nl

© 2012 - 2026 OOZO.nl - info@oozo.nl - Gegevens verwijderen? | Disclaimer | Privacy statement