Woning Nieuwe Koekoekstraat 2bis Utrecht

Nieuwe Koekoekstraat 2bis, 3514EE Utrecht

Ontvang updates voor Vogelenbuurt

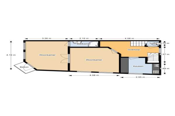
Het adres van deze woning uit 1904 is Nieuwe Koekoekstraat 2bis te Utrecht. Het pand heeft een oppervlakte van 90m² en heeft 5 kamers kamers waarvan 3 slaapkamers. De geschatte waarde van deze woning is € 360.000.

Bekijk alle woningen in Vogelenbuurt

Gegevens van Bovenwoning (dubbel bovenhuis)

Bouwjaar
1904
Geschatte waarde
€ 360.000
Oppervlakte
90 m2
Inhoud
298 m3
Aantal kamers
5 kamers
Slaapkamers
3
Badkamers
2 badkamers en 2 aparte toiletten
Soort bouw
Bestaande bouw
Eigendomssituatie
Volle eigendom
Ligging
In woonwijk en vrij uitzicht

Voorzieningen in de buurt

Boodschappen0,2 km
Grote supermarkt0,4 km
Cafetaria0,2 km
Restaurant0,2 km
Huisarts0,2 km
Ziekenhuis2,3 km
Kinderdagverblijf0,2 km
BSO0,2 km
Alle voorzieningen in Vogelenbuurt

Binnenkijken bij Nieuwe Koekoekstraat 2bis te Utrecht

Meer meldingen in deze omgeving

Nieuw bedrijf
December 2025
Kwartelstraat 11, 3514ES Utrecht

Nieuw bedrijf
December 2025
Draaiweg 75G, 3515EK Utrecht

112 melding
Zaterdag 13-12-2025 om 14:32
Lijsterstraat, Utrecht

Binnenkijken bij
Donderdag 11-12-2025
Van Humboldtstraat 22B, 3514GP Utrecht

Nieuw bedrijf
December 2025
Adelaarstraat 70BS, 3514CH Utrecht

Nieuw bedrijf
December 2025
Koekoeksplein 8, 3514TT Utrecht

Binnenkijken bij
Donderdag 4-12-2025
Merelstraat 56, 3514CN Utrecht

Binnenkijken bij
Donderdag 4-12-2025
Kwartelstraat 18A, 3514EV Utrecht

Direct een e-mail ontvangen bij nieuwe meldingen in deze regio?

Meld je dan GRATIS aan voor de Oozo Alert service voor Vogelenbuurt

Instellen

Meer nieuws in Vogelenbuurt

Weten hoe eenvoudig het is om af te vallen? Zonder pillen en smeersels en zonder je in het zweet te werken!
Kijk op eenvoudig-afvallen.nl

© 2012 - 2025 OOZO.nl - info@oozo.nl - Gegevens verwijderen? | Disclaimer | Privacy statement