Woning Obrechtstraat 62 Utrecht

Obrechtstraat 62, 3572EH Utrecht

Ontvang updates voor Wittevrouwen

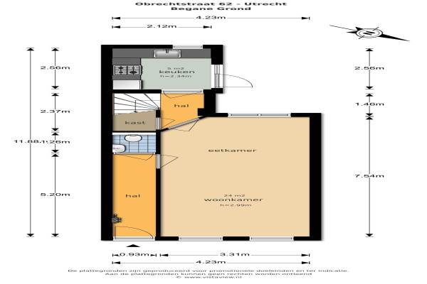
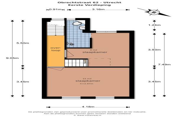
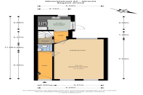
Het adres van deze woning uit 1904 is Obrechtstraat 62 te Utrecht. Het pand heeft een oppervlakte van 98m² en een perceeloppervlakte van 94m² en heeft 5 kamers kamers waarvan 4 slaapkamers. De geschatte waarde van deze woning is € 569.000.

Bekijk alle woningen in Wittevrouwen

Gegevens van Eengezinswoning, tussenwoning

Bouwjaar
1904
Geschatte waarde
€ 569.000
Oppervlakte
98 m2
Inhoud
362 m3
Aantal kamers
5 kamers
Slaapkamers
4
Badkamers
2 badkamers en 1 apart toilet
Soort bouw
Bestaande bouw
Eigendomssituatie
Volle eigendom
Ligging
Aan rustige weg en in woonwijk
Tuin
Achtertuin
Achtertuin
54 m² (10,85m diep en 5m breed)

Voorzieningen in de buurt

Boodschappen0,2 km
Grote supermarkt0,4 km
Cafetaria0,2 km
Restaurant0,1 km
Huisarts0,4 km
Ziekenhuis2,2 km
Kinderdagverblijf0,2 km
BSO0,2 km
Alle voorzieningen in Wittevrouwen

Binnenkijken bij Obrechtstraat 62 te Utrecht

Meer meldingen in deze omgeving

Binnenkijken bij
Zondag 25-1-2026
Gildstraat 153, 3572EM Utrecht

Binnenkijken bij
Zondag 25-1-2026
Bollenhofsestraat 178BS, 3572VW Utrecht

Onroerend goed
Donderdag 22-1-2026
Krijtstraat 14- 16, 3572TN Utrecht

Nieuw bedrijf
Januari 2026
Griftstraat 117, 3572GT Utrecht

Nieuw bedrijf
Januari 2026
Klaverstraat 12, 3572VD Utrecht

Nieuw bedrijf
Januari 2026
St.-Janshovenstraat 141, 3572RB Utrecht

Nieuw bedrijf
Januari 2026
Bouwstraat 7, 3572SN Utrecht

Binnenkijken bij
Woensdag 21-1-2026
Poortstraat 89, 3572HG Utrecht

Direct een e-mail ontvangen bij nieuwe meldingen in deze regio?

Meld je dan GRATIS aan voor de Oozo Alert service voor Wittevrouwen

Instellen

Meer nieuws in Wittevrouwen

Weten hoe eenvoudig het is om af te vallen? Zonder pillen en smeersels en zonder je in het zweet te werken!
Kijk op eenvoudig-afvallen.nl

© 2012 - 2026 OOZO.nl - info@oozo.nl - Gegevens verwijderen? | Disclaimer | Privacy statement