Woning Oppenheimplein 6 Utrecht

Oppenheimplein 6, 3551BN Utrecht

Ontvang updates voor Elegantierstraat, Mariëndaalstraat en omgeving

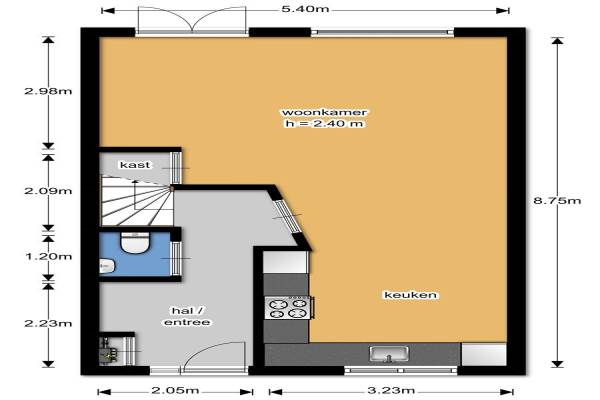
Het adres van deze woning uit 1999 is Oppenheimplein 6 te Utrecht. Het pand heeft een oppervlakte van 95m² en een perceeloppervlakte van 145m² en heeft 4 kamers kamers waarvan 3 slaapkamers. De geschatte waarde van deze woning is € 300.000.

Bekijk alle woningen in Elegantierstraat, Mariëndaalstraat en omgeving

Gegevens van Eengezinswoning, tussenwoning

Bouwjaar
1999
Geschatte waarde
€ 300.000
Oppervlakte
95 m2
Inhoud
313 m3
Aantal kamers
4 kamers
Slaapkamers
3
Badkamers
1 badkamer en 2 aparte toiletten
Soort bouw
Bestaande bouw
Eigendomssituatie
Gemeentelijk eigendom belast met erfpacht
Ligging
Aan rustige weg en in woonwijk
Tuin
Achtertuin
Achtertuin
81 m² (15m diep en 5,4m breed)

Voorzieningen in de buurt

Boodschappen0,2 km
Grote supermarkt0,2 km
Cafetaria0,2 km
Restaurant0,2 km
Huisarts0,2 km
Ziekenhuis3,1 km
Kinderdagverblijf0,3 km
BSO0,5 km
Alle voorzieningen in Elegantierstraat, Mariëndaalstraat en omgeving

Binnenkijken bij Oppenheimplein 6 te Utrecht

Meer meldingen in deze omgeving

Nieuw bedrijf
Oktober 2025
Amsterdamsestraatweg 325, 3551CJ Utrecht

Binnenkijken bij
Woensdag 29-10-2025
Egelantierstraat 40, 3551GD Utrecht

Nieuw bedrijf
Oktober 2025
Amsterdamsestraatweg 309, 3551CH Utrecht

112 melding
Maandag 27-10-2025 om 11:32
Oppenheimplein, 3551BN Utrecht

Binnenkijken bij
Zondag 19-10-2025
Seringstraat 58, 3551TM Utrecht

Binnenkijken bij
Vrijdag 17-10-2025
Seringstraat 72, 3551TM Utrecht

Binnenkijken bij
Donderdag 16-10-2025
2e Daalsedijk 42, 3551EK Utrecht

Nieuw bedrijf
Oktober 2025
Ondiep-Zuidzijde 6, 3551BW Utrecht

Direct een e-mail ontvangen bij nieuwe meldingen in deze regio?

Meld je dan GRATIS aan voor de Oozo Alert service voor Elegantierstraat, Mariëndaalstraat en omgeving

Instellen

Meer nieuws in Elegantierstraat, Mariëndaalstraat en omgeving

Weten hoe eenvoudig het is om af te vallen? Zonder pillen en smeersels en zonder je in het zweet te werken!
Kijk op eenvoudig-afvallen.nl

© 2012 - 2025 OOZO.nl - info@oozo.nl - Gegevens verwijderen? | Disclaimer | Privacy statement