Woning Van Hoornekade 3B Utrecht

Van Hoornekade 3B, 3554AR Utrecht

Ontvang updates voor Geuzenwijk

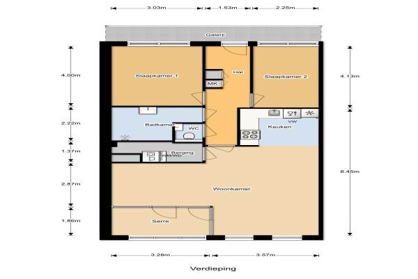
Het adres van deze woning uit 2011 is Van Hoornekade 3B te Utrecht. Het pand heeft een oppervlakte van 88m² en heeft 3 kamers kamers waarvan 2 slaapkamers. De geschatte waarde van deze woning is € 240.000.

Bekijk alle woningen in Geuzenwijk

Gegevens van Galerijflat (appartement)

Bouwjaar
2011
Geschatte waarde
€ 240.000
Oppervlakte
88 m2
Inhoud
275 m3
Aantal kamers
3 kamers
Slaapkamers
2
Badkamers
1 badkamer en 1 apart toilet
Soort bouw
Bestaande bouw
Eigendomssituatie
Gemeentelijke erfpacht
Ligging
In woonwijk en vrij uitzicht

Voorzieningen in de buurt

Boodschappen0,4 km
Grote supermarkt0,8 km
Cafetaria0,2 km
Restaurant0,4 km
Huisarts0,7 km
Ziekenhuis2,6 km
Kinderdagverblijf0,3 km
BSO0,4 km
Alle voorzieningen in Geuzenwijk

Binnenkijken bij Van Hoornekade 3B te Utrecht

Meer meldingen in deze omgeving

Binnenkijken bij
Woensdag 29-10-2025
Adriaan van Bergenstraat 7BS, 3554VA Utrecht

Binnenkijken bij
Woensdag 29-10-2025
Marnixlaan 272C, 3552HK Utrecht

Binnenkijken bij
Woensdag 29-10-2025
Van Hoornekade 91A, 3554AS Utrecht

Nieuw bedrijf
Oktober 2025
Jan Haringstraat 35, 3554XV Utrecht

Nieuw bedrijf
Oktober 2025
Cornelis Roobolstraat 82, 3554BV Utrecht

Nieuw bedrijf
Oktober 2025
Marnixlaan 124, 3552HH Utrecht

112 melding
Zaterdag 25-10-2025 om 14:46
Kenaustraat, Utrecht

112 melding
Zaterdag 25-10-2025 om 14:46
Kenaustraat, Utrecht

Direct een e-mail ontvangen bij nieuwe meldingen in deze regio?

Meld je dan GRATIS aan voor de Oozo Alert service voor Geuzenwijk

Instellen

Meer nieuws in Geuzenwijk

Weten hoe eenvoudig het is om af te vallen? Zonder pillen en smeersels en zonder je in het zweet te werken!
Kijk op eenvoudig-afvallen.nl

© 2012 - 2025 OOZO.nl - info@oozo.nl - Gegevens verwijderen? | Disclaimer | Privacy statement