Woning Pijlstraat 18 Utrecht

Pijlstraat 18, 3552XP Utrecht

Ontvang updates voor Nijenoord, Hoogstraat en omgeving

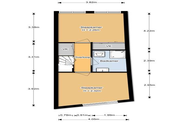
Het adres van deze woning uit 1919 is Pijlstraat 18 te Utrecht. Het pand heeft een oppervlakte van 81m² en een perceeloppervlakte van 69m² en heeft 3 kamers kamers waarvan 2 slaapkamers. De geschatte waarde van deze woning is € 250.000.

Bekijk alle woningen in Nijenoord, Hoogstraat en omgeving

Gegevens van Eengezinswoning, tussenwoning

Bouwjaar
1919
Geschatte waarde
€ 250.000
Oppervlakte
81 m2
Inhoud
291 m3
Aantal kamers
3 kamers
Slaapkamers
2
Badkamers
1 badkamer en 1 apart toilet
Soort bouw
Bestaande bouw
Eigendomssituatie
Volle eigendom
Ligging
Aan rustige weg en in woonwijk
Tuin
Achtertuin
Achtertuin
28 m² (7,45m diep en 3,77m breed)

Voorzieningen in de buurt

Boodschappen0,4 km
Grote supermarkt0,7 km
Cafetaria0,2 km
Restaurant0,5 km
Huisarts0,5 km
Ziekenhuis2,1 km
Kinderdagverblijf0,4 km
BSO0,8 km
Alle voorzieningen in Nijenoord, Hoogstraat en omgeving

Binnenkijken bij Pijlstraat 18 te Utrecht

Meer meldingen in deze omgeving

Binnenkijken bij
Woensdag 21-1-2026
Van Zijlstraat 1, 3552XR Utrecht

Nieuw bedrijf
Januari 2026
Nijenoord 87, 3552AS Utrecht

Binnenkijken bij
Vrijdag 9-1-2026
Anthoniedijk 9D, 3552XC Utrecht

112 melding
Zondag 4-1-2026 om 22:34
Oude Loevenhoutsedijk, 3552XD Utrecht

112 melding
Zondag 4-1-2026 om 22:34
Oude Loevenhoutsedijk, 3552XD Utrecht

112 melding
Zondag 4-1-2026 om 22:34
Oude Loevenhoutsedijk, 3552XD Utrecht

112 melding
Zondag 4-1-2026 om 22:34
Oude Loevenhoutsedijk, 3552XD Utrecht

112 melding
Zondag 4-1-2026 om 17:43
Boomgaardlaan, Utrecht

Direct een e-mail ontvangen bij nieuwe meldingen in deze regio?

Meld je dan GRATIS aan voor de Oozo Alert service voor Nijenoord, Hoogstraat en omgeving

Instellen

Meer nieuws in Nijenoord, Hoogstraat en omgeving

Weten hoe eenvoudig het is om af te vallen? Zonder pillen en smeersels en zonder je in het zweet te werken!
Kijk op eenvoudig-afvallen.nl

© 2012 - 2026 OOZO.nl - info@oozo.nl - Gegevens verwijderen? | Disclaimer | Privacy statement