Woning Kruisweg 27bis Utrecht

Kruisweg 27bis, 3513CS Utrecht

Ontvang updates voor Pijlsweerd-Zuid

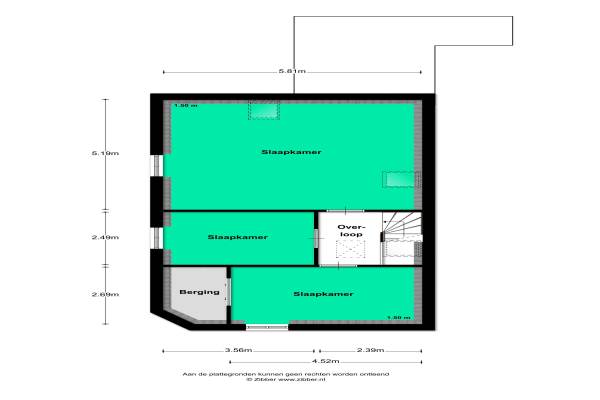
Het adres van deze woning uit 1902 is Kruisweg 27bis te Utrecht. Het pand heeft een oppervlakte van 127m² en heeft 6 kamers kamers waarvan 3 slaapkamers. De geschatte waarde van deze woning is € 425.000.

Bekijk alle woningen in Pijlsweerd-Zuid

Gegevens van Bovenwoning (appartement)

Bouwjaar
1902
Geschatte waarde
€ 425.000
Oppervlakte
127 m2
Inhoud
480 m3
Aantal kamers
6 kamers
Slaapkamers
3
Badkamers
1 badkamer en 1 apart toilet
Soort bouw
Bestaande bouw
Eigendomssituatie
Volle eigendom
Ligging
Aan rustige weg en in woonwijk

Voorzieningen in de buurt

Boodschappen0,2 km
Grote supermarkt0,2 km
Cafetaria0,2 km
Restaurant0,2 km
Huisarts0,4 km
Ziekenhuis2,9 km
Kinderdagverblijf0,3 km
BSO0,4 km
Alle voorzieningen in Pijlsweerd-Zuid

Binnenkijken bij Kruisweg 27bis te Utrecht

Meer meldingen in deze omgeving

Nieuw bedrijf
December 2025
1e Daalsedijk 224, 3513TJ Utrecht

Nieuw bedrijf
December 2025
Korenschoofstraat 45, 3513DE Utrecht

Binnenkijken bij
Donderdag 11-12-2025
1e Daalsedijk 183, 3513TE Utrecht

Binnenkijken bij
Donderdag 11-12-2025
Singelstraat 29, 3513BM Utrecht

Nieuw bedrijf
December 2025
Weerdsingel W.Z. 8B, 3513BA Utrecht

Nieuw bedrijf
December 2025
Herenweg 73BS, 3513CD Utrecht

112 melding
Dinsdag 9-12-2025 om 11:40
Bemuurde Weerd W.Z., Utrecht


Direct een e-mail ontvangen bij nieuwe meldingen in deze regio?

Meld je dan GRATIS aan voor de Oozo Alert service voor Pijlsweerd-Zuid

Instellen

Meer nieuws in Pijlsweerd-Zuid

Weten hoe eenvoudig het is om af te vallen? Zonder pillen en smeersels en zonder je in het zweet te werken!
Kijk op eenvoudig-afvallen.nl

© 2012 - 2025 OOZO.nl - info@oozo.nl - Gegevens verwijderen? | Disclaimer | Privacy statement