Woning Israëlslaan 16III Utrecht

Israëlslaan 16III, 3582HM Utrecht

Ontvang updates voor Rubenslaan en omgeving

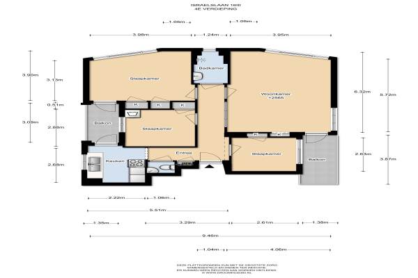
Het adres van deze woning uit 1955 is Israëlslaan 16III te Utrecht. Het pand heeft een oppervlakte van 79m² en heeft 4 kamers kamers waarvan 3 slaapkamers. De geschatte waarde van deze woning is € 250.000.

Bekijk alle woningen in Rubenslaan en omgeving

Gegevens van Portiekflat

Bouwjaar
1955
Geschatte waarde
€ 250.000
Oppervlakte
79 m2
Inhoud
250 m3
Aantal kamers
4 kamers
Slaapkamers
3
Badkamers
1 apart toilet
Soort bouw
Bestaande bouw
Eigendomssituatie
Volle eigendom
Ligging
Aan rustige weg, in woonwijk, vrij uitzicht en open ligging

Voorzieningen in de buurt

Boodschappen0,4 km
Grote supermarkt0,4 km
Cafetaria0,3 km
Restaurant0,3 km
Huisarts0,6 km
Ziekenhuis0,6 km
Kinderdagverblijf0,4 km
BSO0,5 km
Alle voorzieningen in Rubenslaan en omgeving

Binnenkijken bij Israëlslaan 16III te Utrecht

Meer meldingen in deze omgeving

Nieuw bedrijf
Oktober 2025
Ina Boudier-Bakkerlaan 101, 3582XH Utrecht

Nieuw bedrijf
Oktober 2025
Ina Boudier-Bakkerlaan 41J, 3582VG Utrecht

Binnenkijken bij
Woensdag 29-10-2025
Adriaen van Ostadelaan 157, 3583AG Utrecht

Binnenkijken bij
Woensdag 29-10-2025
Rubenslaan 793, 3582JE Utrecht

Binnenkijken bij
Woensdag 29-10-2025
Ina Boudier-Bakkerlaan 22R, 3582VA Utrecht

Binnenkijken bij
Woensdag 29-10-2025
Ina Boudier-Bakkerlaan 24N, 3582VA Utrecht

Binnenkijken bij
Woensdag 29-10-2025
Rubenslaan 47, 3582JA Utrecht

112 melding
Donderdag 23-10-2025 om 09:30
Bosboomstraat, 3582KE Utrecht

Direct een e-mail ontvangen bij nieuwe meldingen in deze regio?

Meld je dan GRATIS aan voor de Oozo Alert service voor Rubenslaan en omgeving

Instellen

Meer nieuws in Rubenslaan en omgeving

Weten hoe eenvoudig het is om af te vallen? Zonder pillen en smeersels en zonder je in het zweet te werken!
Kijk op eenvoudig-afvallen.nl

© 2012 - 2025 OOZO.nl - info@oozo.nl - Gegevens verwijderen? | Disclaimer | Privacy statement