Woning Moezeldreef 315 Utrecht

Moezeldreef 315, 3561GD Utrecht

Ontvang updates voor Taag- en Rubicondreef en omgeving

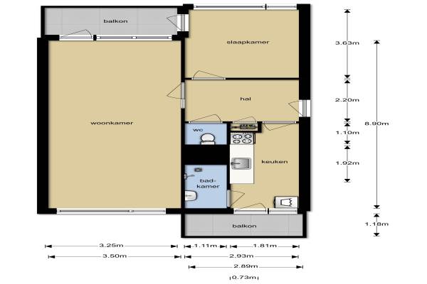
Het adres van deze woning uit 1965 is Moezeldreef 315 te Utrecht. Het pand heeft een oppervlakte van 61m² en heeft 2 kamers kamers waarvan 1 slaapkamers. De geschatte waarde van deze woning is € 175.000.

Bekijk alle woningen in Taag- en Rubicondreef en omgeving

Gegevens van Portiekflat (appartement)

Bouwjaar
1965
Geschatte waarde
€ 175.000
Oppervlakte
61 m2
Inhoud
201 m3
Aantal kamers
2 kamers
Slaapkamers
1
Badkamers
1 badkamer en 1 apart toilet
Soort bouw
Bestaande bouw
Eigendomssituatie
Volle eigendom
Ligging
Aan park, aan rustige weg, in woonwijk en open ligging

Voorzieningen in de buurt

Boodschappen0,4 km
Grote supermarkt0,6 km
Cafetaria0,4 km
Restaurant0,4 km
Huisarts0,9 km
Ziekenhuis0,9 km
Kinderdagverblijf0,4 km
BSO0,4 km
Alle voorzieningen in Taag- en Rubicondreef en omgeving

Binnenkijken bij Moezeldreef 315 te Utrecht

Meer meldingen in deze omgeving

112 melding
Vrijdag 3-10-2025 om 18:25
Van Brammendreef, Utrecht

112 melding
Vrijdag 3-10-2025 om 18:23
Van Brammendreef, Utrecht

Nieuw bedrijf
Oktober 2025
Toscadreef 11, 3561HC Utrecht

112 melding
Donderdag 2-10-2025 om 20:27
Dorbeendreef, Utrecht

Binnenkijken bij
Woensdag 24-9-2025
Arnodreef 19, 3561GJ Utrecht

Binnenkijken bij
Maandag 22-9-2025
Moezeldreef 311, 3561GD Utrecht

Binnenkijken bij
Maandag 22-9-2025
Taagdreef 25, 3561VH Utrecht

Binnenkijken bij
Maandag 22-9-2025
Taagdreef 39, 3561VH Utrecht

Direct een e-mail ontvangen bij nieuwe meldingen in deze regio?

Meld je dan GRATIS aan voor de Oozo Alert service voor Taag- en Rubicondreef en omgeving

Instellen

Meer nieuws in Taag- en Rubicondreef en omgeving

Weten hoe eenvoudig het is om af te vallen? Zonder pillen en smeersels en zonder je in het zweet te werken!
Kijk op eenvoudig-afvallen.nl

© 2012 - 2025 OOZO.nl - info@oozo.nl - Gegevens verwijderen? | Disclaimer | Privacy statement