Woning Chilidreef 53 Utrecht

Chilidreef 53, 3563HD Utrecht

Ontvang updates voor Vechtzoom-noord, Klopvaart

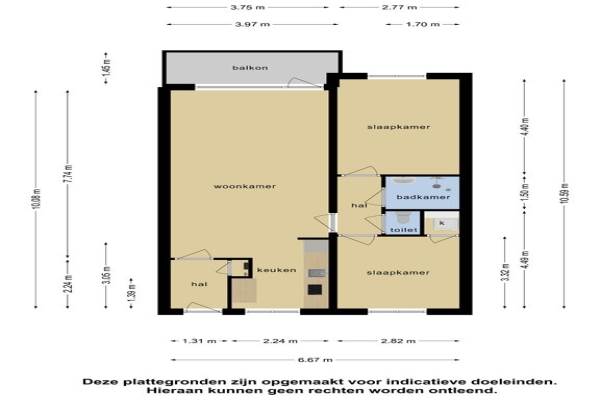
Het adres van deze woning uit 1987 is Chilidreef 53 te Utrecht. Het pand heeft een oppervlakte van 68m² en heeft 3 kamers kamers waarvan 2 slaapkamers. De geschatte waarde van deze woning is € 250.000.

Bekijk alle woningen in Vechtzoom-noord, Klopvaart

Gegevens van Appartement

Bouwjaar
1987
Geschatte waarde
€ 250.000
Oppervlakte
68 m2
Inhoud
200 m3
Aantal kamers
3 kamers
Slaapkamers
2
Badkamers
1 badkamer en 1 apart toilet
Eigendomssituatie
Erfpacht
Ligging
Aan rustige weg en in woonwijk
Tuin
Balkon aanwezig

Voorzieningen in de buurt

Boodschappen0,5 km
Grote supermarkt0,5 km
Cafetaria0,6 km
Restaurant0,7 km
Huisarts0,8 km
Ziekenhuis2,9 km
Kinderdagverblijf0,6 km
BSO1,5 km
Alle voorzieningen in Vechtzoom-noord, Klopvaart

Binnenkijken bij Chilidreef 53 te Utrecht

Meer meldingen in deze omgeving

112 melding
Vrijdag 12-12-2025 om 17:29
Orinocodreef, 3563ST Utrecht

112 melding
Vrijdag 12-12-2025 om 17:29
Orinocodreef, 3563ST Utrecht

Nieuw bedrijf
December 2025
Nicaraguadreef 127, 3563HT Utrecht

Nieuw bedrijf
December 2025
Chilidreef 7, 3563HD Utrecht

Binnenkijken bij
Zondag 7-12-2025
Washingtondreef 53, 3564KC Utrecht

112 melding
Woensdag 26-11-2025 om 01:29
Costa Ricadreef, Utrecht

112 melding
Donderdag 20-11-2025 om 11:18
Rio Brancodreef, 3563SM Utrecht

112 melding
Donderdag 20-11-2025 om 11:15
Rio Brancodreef, 3563SM Utrecht

Direct een e-mail ontvangen bij nieuwe meldingen in deze regio?

Meld je dan GRATIS aan voor de Oozo Alert service voor Vechtzoom-noord, Klopvaart

Instellen

Meer nieuws in Vechtzoom-noord, Klopvaart

Weten hoe eenvoudig het is om af te vallen? Zonder pillen en smeersels en zonder je in het zweet te werken!
Kijk op eenvoudig-afvallen.nl

© 2012 - 2025 OOZO.nl - info@oozo.nl - Gegevens verwijderen? | Disclaimer | Privacy statement