Woning Morgenstond 33 De Meern

Morgenstond 33, 3454SR De Meern

Ontvang updates voor De Meern-Noord

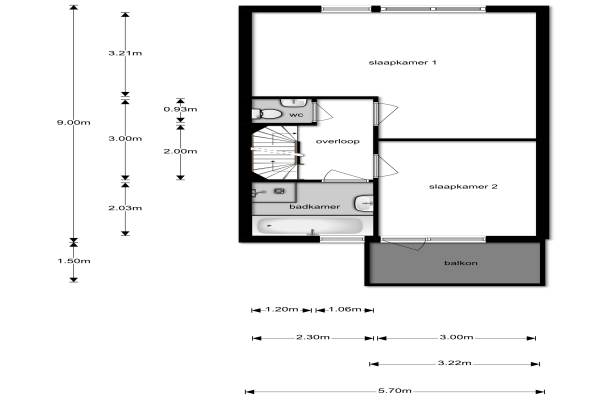
Het adres van deze woning uit 1994 is Morgenstond 33 te De Meern. Het pand heeft een oppervlakte van 125m² en een perceeloppervlakte van 182m² en heeft 4 kamers kamers waarvan 3 slaapkamers. De geschatte waarde van deze woning is € 350.000.

Bekijk alle woningen in De Meern-Noord

Gegevens van Eengezinswoning, hoekwoning

Bouwjaar
1994
Geschatte waarde
€ 350.000
Oppervlakte
125 m2
Inhoud
450 m3
Aantal kamers
4 kamers
Slaapkamers
3
Badkamers
2 aparte toiletten
Soort bouw
Bestaande bouw
Eigendomssituatie
Volle eigendom
Ligging
In woonwijk
Tuin
Achtertuin, voortuin en zijtuin
Achtertuin
61 m² (10m diep en 6,1m breed)

Voorzieningen in de buurt

Boodschappen0,9 km
Grote supermarkt1,2 km
Cafetaria0,8 km
Restaurant0,8 km
Huisarts0,8 km
Ziekenhuis1,8 km
Kinderdagverblijf0,8 km
BSO0,6 km
Alle voorzieningen in De Meern-Noord

Binnenkijken bij Morgenstond 33 te De Meern

Meer meldingen in deze omgeving

112 melding
Dinsdag 27-1-2026 om 09:38
Castellumlaan, De Meern

Binnenkijken bij
Zondag 25-1-2026
Aart van der Leeuwlaan 39, 3454LB De Meern

112 melding
Vrijdag 23-1-2026 om 00:15
Keerkring, De Meern

Nieuw bedrijf
Januari 2026
Mistral 12, 3454KD DE MEERN

Nieuw bedrijf
Januari 2026
Gerrit Achterberglaan 25, 3454VT De Meern

Nieuw bedrijf
Januari 2026
Gerrit Achterberglaan 2, 3454VT De Meern

Binnenkijken bij
Zaterdag 17-1-2026
Zandweg 172, 3454HC De Meern

Binnenkijken bij
Donderdag 15-1-2026
Castellumlaan 17, 3454VA De Meern

Direct een e-mail ontvangen bij nieuwe meldingen in deze regio?

Meld je dan GRATIS aan voor de Oozo Alert service voor De Meern-Noord

Instellen

Meer nieuws in De Meern-Noord

Weten hoe eenvoudig het is om af te vallen? Zonder pillen en smeersels en zonder je in het zweet te werken!
Kijk op eenvoudig-afvallen.nl

© 2012 - 2026 OOZO.nl - info@oozo.nl - Gegevens verwijderen? | Disclaimer | Privacy statement