Woning Dwergbloemsingel 48 Vleuten

Dwergbloemsingel 48, 3452BK Vleuten

Ontvang updates voor Vleuterweide-West

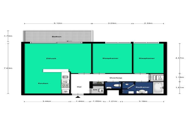
Het adres van deze woning uit 2006 is Dwergbloemsingel 48 te Vleuten. Het pand heeft een oppervlakte van 80m² en heeft 3 kamers kamers waarvan 2 slaapkamers. De geschatte waarde van deze woning is € 280.000.

Bekijk alle woningen in Vleuterweide-West

Gegevens van Portiekflat (appartement)

Bouwjaar
2006
Geschatte waarde
€ 280.000
Oppervlakte
80 m2
Inhoud
260 m3
Aantal kamers
3 kamers
Slaapkamers
2
Badkamers
1 apart toilet
Soort bouw
Bestaande bouw
Eigendomssituatie
Volle eigendom
Ligging
In woonwijk

Voorzieningen in de buurt

Boodschappen1,6 km
Grote supermarkt1,5 km
Cafetaria1,5 km
Restaurant1,5 km
Huisarts1,4 km
Ziekenhuis2,9 km
Kinderdagverblijf0,4 km
BSO0,5 km
Alle voorzieningen in Vleuterweide-West

Binnenkijken bij Dwergbloemsingel 48 te Vleuten

Meer meldingen in deze omgeving

Nieuw bedrijf
Maart 2026
Veldbloemlaan 34, 3452CL Vleuten

Nieuw bedrijf
Maart 2026
Mattenbieslaan 74, 3452AE Vleuten

Nieuw bedrijf
Maart 2026
Duizendknooplaan 63, 3452AT Vleuten

112 melding
Donderdag 12-3-2026 om 10:52
Dotterbloemkade, 3451PH Vleuten

112 melding
Donderdag 12-3-2026 om 10:51
Dotterbloemkade, 3451PH Vleuten

Binnenkijken bij
Maandag 9-3-2026
Waterbieslaan 56, 3452AP Vleuten

Nieuw bedrijf
Maart 2026
Mattenbieslaan 81, 3452AD Vleuten

Nieuw bedrijf
Maart 2026
Liesgrassingel 12, 3451PT Vleuten

Direct een e-mail ontvangen bij nieuwe meldingen in deze regio?

Meld je dan GRATIS aan voor de Oozo Alert service voor Vleuterweide-West

Instellen

Meer nieuws in Vleuterweide-West

Weten hoe eenvoudig het is om af te vallen? Zonder pillen en smeersels en zonder je in het zweet te werken!
Kijk op eenvoudig-afvallen.nl

© 2012 - 2026 OOZO.nl - info@oozo.nl - Gegevens verwijderen? | Disclaimer | Privacy statement