Woning Lentetuinlaan 7 Vleuten

Lentetuinlaan 7, 3452RC Vleuten

Ontvang updates voor Vleuterweide-Zuid

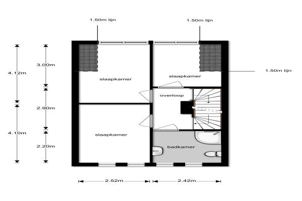
Het adres van deze woning uit 2011 is Lentetuinlaan 7 te Vleuten. Het pand heeft een oppervlakte van 94m² en een perceeloppervlakte van 99m² en heeft 5 kamers kamers waarvan 4 slaapkamers. De geschatte waarde van deze woning is € 289.000.

Bekijk alle woningen in Vleuterweide-Zuid

Gegevens van Eengezinswoning, tussenwoning

Bouwjaar
2011
Geschatte waarde
€ 289.000
Oppervlakte
94 m2
Inhoud
310 m3
Aantal kamers
5 kamers
Slaapkamers
4
Badkamers
1 apart toilet
Soort bouw
Bestaande bouw
Eigendomssituatie
Volle eigendom
Tuin
Achtertuin
Achtertuin
35 m² (7m diep en 5m breed)

Voorzieningen in de buurt

Boodschappen1,1 km
Grote supermarkt1,1 km
Cafetaria1,1 km
Restaurant1,1 km
Huisarts1,1 km
Ziekenhuis1,9 km
Kinderdagverblijf0,4 km
BSO0,3 km
Alle voorzieningen in Vleuterweide-Zuid

Binnenkijken bij Lentetuinlaan 7 te Vleuten

Meer meldingen in deze omgeving

Nieuw bedrijf
November 2025
Sculpturentuinlaan 32, 3452RG Vleuten

Binnenkijken bij
Dinsdag 25-11-2025
Kruidentuinlaan 33, 3452SW Vleuten

Binnenkijken bij
Vrijdag 21-11-2025
Madameperenlaan 85, 3452ES Vleuten

Nieuw bedrijf
November 2025
Heidetuinlaan 12, 3452SE Vleuten

Nieuw bedrijf
November 2025
Chinesetuinlaan 10, 3452RT Vleuten

Nieuw bedrijf
November 2025
Japansetuinlaan 10, 3452RV Vleuten

Nieuw bedrijf
November 2025
Zandweg 214C, 3454HE Vleuten

Nieuw bedrijf
November 2025
Beeldentuinlaan 53, 3452SJ Vleuten

Direct een e-mail ontvangen bij nieuwe meldingen in deze regio?

Meld je dan GRATIS aan voor de Oozo Alert service voor Vleuterweide-Zuid

Instellen

Meer nieuws in Vleuterweide-Zuid

Weten hoe eenvoudig het is om af te vallen? Zonder pillen en smeersels en zonder je in het zweet te werken!
Kijk op eenvoudig-afvallen.nl

© 2012 - 2025 OOZO.nl - info@oozo.nl - Gegevens verwijderen? | Disclaimer | Privacy statement