Woning Van Koetsveldstraat 110 Utrecht

Van Koetsveldstraat 110, 3532ET Utrecht

Ontvang updates voor Nieuw Engeland, Th. a. Kempisplantsoen en omgeving

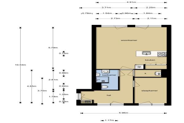
Het adres van deze woning uit 2006 is Van Koetsveldstraat 110 te Utrecht. Het pand heeft een oppervlakte van 55m² en heeft 2 kamers kamers waarvan 1 slaapkamers. De geschatte waarde van deze woning is € 224.500.

Bekijk alle woningen in Nieuw Engeland, Th. a. Kempisplantsoen en omgeving

Gegevens van Bovenwoning (appartement)

Bouwjaar
2006
Geschatte waarde
€ 224.500
Oppervlakte
55 m2
Inhoud
177 m3
Aantal kamers
2 kamers
Slaapkamers
1
Soort bouw
Bestaande bouw
Ligging
Aan rustige weg en in woonwijk

Voorzieningen in de buurt

Boodschappen0,3 km
Grote supermarkt0,5 km
Cafetaria0,2 km
Restaurant0,2 km
Huisarts0,6 km
Ziekenhuis3,4 km
Kinderdagverblijf0,3 km
BSO0,3 km
Alle voorzieningen in Nieuw Engeland, Th. a. Kempisplantsoen en omgeving

Binnenkijken bij Van Koetsveldstraat 110 te Utrecht

Meer meldingen in deze omgeving

Nieuw bedrijf
April 2026
Douwes Dekkerstraat 45, 3532XA Utrecht

Nieuw bedrijf
April 2026
P.A. de Genestetstraat 16, 3532XR Utrecht

112 melding
Woensdag 22-4-2026 om 10:31
Alberdingk Thijmstraat, 3532VL Utrecht

112 melding
Woensdag 22-4-2026 om 10:19
Alberdingk Thijmstraat, 3532VL Utrecht

Faillissement
Vrijdag 17-4-2026
Vleutensevaart 100, 3532AD Utrecht

Nieuw bedrijf
April 2026
Vleutensevaart 100, 3532AD Utrecht

Binnenkijken bij
Donderdag 16-4-2026
Van Koetsveldstraat 38, 3532ES Utrecht

Binnenkijken bij
Dinsdag 14-4-2026
Cremerstraat 124, 3532BJ Utrecht

Direct een e-mail ontvangen bij nieuwe meldingen in deze regio?

Meld je dan GRATIS aan voor de Oozo Alert service voor Nieuw Engeland, Th. a. Kempisplantsoen en omgeving

Instellen

Meer nieuws in Nieuw Engeland, Th. a. Kempisplantsoen en omgeving

Weten hoe eenvoudig het is om af te vallen? Zonder pillen en smeersels en zonder je in het zweet te werken!
Kijk op eenvoudig-afvallen.nl

© 2012 - 2026 OOZO.nl - info@oozo.nl - Gegevens verwijderen? | Disclaimer | Privacy statement