Woning Petrarcalaan 25 Utrecht

Petrarcalaan 25, 3533CP Utrecht

Ontvang updates voor Oog in Al

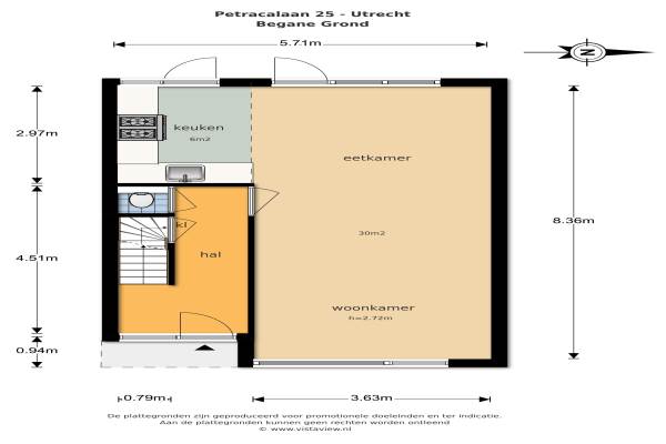
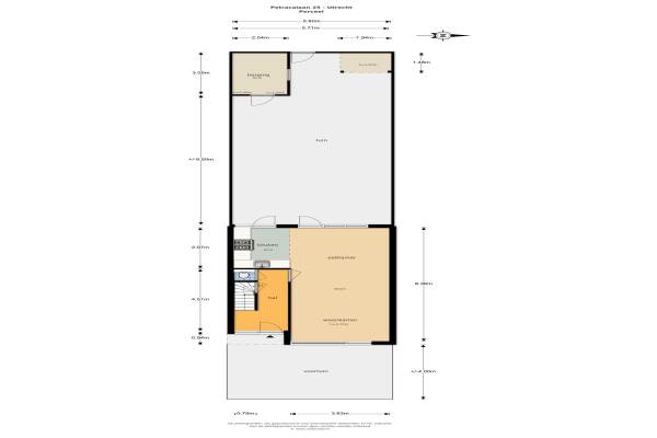
Het adres van deze woning uit 1951 is Petrarcalaan 25 te Utrecht. Het pand heeft een oppervlakte van 120m² en een perceeloppervlakte van 137m² en heeft 5 kamers kamers waarvan 4 slaapkamers. De geschatte waarde van deze woning is € 500.000.

Bekijk alle woningen in Oog in Al

Gegevens van Eengezinswoning, tussenwoning

Bouwjaar
1951
Geschatte waarde
€ 500.000
Oppervlakte
120 m2
Inhoud
438 m3
Aantal kamers
5 kamers
Slaapkamers
4
Badkamers
2 badkamers en 1 apart toilet
Soort bouw
Bestaande bouw
Eigendomssituatie
Volle eigendom
Ligging
In woonwijk
Tuin
Achtertuin en voortuin
Achtertuin
73 m² (12,55m diep en 5,8m breed)

Voorzieningen in de buurt

Boodschappen0,3 km
Grote supermarkt0,3 km
Cafetaria0,3 km
Restaurant0,3 km
Huisarts0,4 km
Ziekenhuis3,8 km
Kinderdagverblijf0,3 km
BSO0,2 km
Alle voorzieningen in Oog in Al

Binnenkijken bij Petrarcalaan 25 te Utrecht

Meer meldingen in deze omgeving

Nieuw bedrijf
Februari 2026
Molièrelaan 54, 3533VJ Utrecht

Faillissement
Donderdag 19-2-2026
Kanaalweg 93, 3533HH Utrecht

Faillissement
Woensdag 18-2-2026
Kanaalweg 93, 3533HH Utrecht

Binnenkijken bij
Vrijdag 13-2-2026
Chopinstraat 43, 3533EK Utrecht

Onroerend goed
Vrijdag 30-1-2026
Händelstraat 67, 3533GJ Utrecht

Binnenkijken bij
Vrijdag 30-1-2026
Robert Schumannstraat 28BS, 3533GP Utrecht

Binnenkijken bij
Zondag 25-1-2026
Mendelssohnstraat 55, 3533XG Utrecht

Binnenkijken bij
Vrijdag 23-1-2026
Petrarcalaan 36, 3533CT Utrecht

Direct een e-mail ontvangen bij nieuwe meldingen in deze regio?

Meld je dan GRATIS aan voor de Oozo Alert service voor Oog in Al

Instellen

Meer nieuws in Oog in Al

Weten hoe eenvoudig het is om af te vallen? Zonder pillen en smeersels en zonder je in het zweet te werken!
Kijk op eenvoudig-afvallen.nl

© 2012 - 2026 OOZO.nl - info@oozo.nl - Gegevens verwijderen? | Disclaimer | Privacy statement