Woning Racinelaan 19 Utrecht

Racinelaan 19, 3533VL Utrecht

Ontvang updates voor Oog in Al

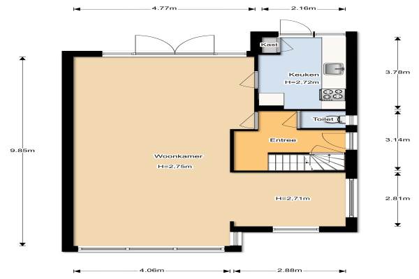
Het adres van deze woning uit 1938 is Racinelaan 19 te Utrecht. Het pand heeft een oppervlakte van 194m² en een perceeloppervlakte van 258m² en heeft 5 kamers kamers waarvan 4 slaapkamers. De geschatte waarde van deze woning is € 750.000.

Bekijk alle woningen in Oog in Al

Gegevens van Herenhuis, hoekwoning

Bouwjaar
1938
Geschatte waarde
€ 750.000
Oppervlakte
194 m2
Inhoud
750 m3
Aantal kamers
5 kamers
Slaapkamers
4
Badkamers
1 badkamer en 1 apart toilet
Soort bouw
Bestaande bouw
Eigendomssituatie
Volle eigendom
Ligging
In woonwijk
Tuin
Achtertuin, voortuin en zijtuin
Achtertuin
60 m² (0,05m diep en 0,12m breed)

Voorzieningen in de buurt

Boodschappen0,3 km
Grote supermarkt0,3 km
Cafetaria0,3 km
Restaurant0,3 km
Huisarts0,4 km
Ziekenhuis3,8 km
Kinderdagverblijf0,3 km
BSO0,2 km
Alle voorzieningen in Oog in Al

Binnenkijken bij Racinelaan 19 te Utrecht

Meer meldingen in deze omgeving

Binnenkijken bij
Vrijdag 23-1-2026
Petrarcalaan 36, 3533CT Utrecht

Binnenkijken bij
Donderdag 22-1-2026
Dantelaan 121, 3533VC Utrecht

Binnenkijken bij
Woensdag 21-1-2026
Lessinglaan 82, 3533AZ Utrecht

Binnenkijken bij
Woensdag 21-1-2026
Lessinglaan 108, 3533AZ Utrecht

Nieuw bedrijf
Januari 2026
Petrarcalaan 16, 3533CS Utrecht

Nieuw bedrijf
Januari 2026
Petrarcalaan 16, 3533CS Utrecht

Nieuw bedrijf
December 2025
Richard Hollaan 10, 3533GX Utrecht

Nieuw bedrijf
December 2025
Johan Winnubstlaan 13, 3533EA Utrecht

Direct een e-mail ontvangen bij nieuwe meldingen in deze regio?

Meld je dan GRATIS aan voor de Oozo Alert service voor Oog in Al

Instellen

Meer nieuws in Oog in Al

Weten hoe eenvoudig het is om af te vallen? Zonder pillen en smeersels en zonder je in het zweet te werken!
Kijk op eenvoudig-afvallen.nl

© 2012 - 2026 OOZO.nl - info@oozo.nl - Gegevens verwijderen? | Disclaimer | Privacy statement