Woning Fregatstraat 5 Utrecht

Fregatstraat 5, 3534RA Utrecht

Ontvang updates voor Schepenbuurt, Cartesiusweg e.o.

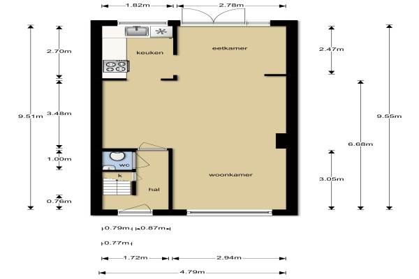
Het adres van deze woning uit 1936 is Fregatstraat 5 te Utrecht. Het pand heeft een oppervlakte van 103m² en een perceeloppervlakte van 91m² en heeft 6 kamers kamers waarvan 5 slaapkamers. De geschatte waarde van deze woning is € 309.000.

Bekijk alle woningen in Schepenbuurt, Cartesiusweg e.o.

Gegevens van Eengezinswoning, tussenwoning

Bouwjaar
1936
Geschatte waarde
€ 309.000
Oppervlakte
103 m2
Inhoud
394 m3
Aantal kamers
6 kamers
Slaapkamers
5
Badkamers
1 badkamer en 1 apart toilet
Soort bouw
Bestaande bouw
Eigendomssituatie
Volle eigendom
Ligging
Aan rustige weg en in woonwijk
Tuin
Achtertuin
Achtertuin
34 m² (7m diep en 4,8m breed)

Voorzieningen in de buurt

Boodschappen1,1 km
Grote supermarkt1,2 km
Cafetaria0,8 km
Restaurant1,0 km
Huisarts1,2 km
Ziekenhuis3,1 km
Kinderdagverblijf0,7 km
BSO0,7 km
Alle voorzieningen in Schepenbuurt, Cartesiusweg e.o.

Binnenkijken bij Fregatstraat 5 te Utrecht

Meer meldingen in deze omgeving

Nieuw bedrijf
November 2025
Nijverheidsweg 16G, 3534AM Utrecht

Nieuw bedrijf
November 2025
Nijverheidsweg 16A, 3534AM Utrecht

Nieuw bedrijf
November 2025
Tractieweg 100, 3534AP Utrecht

112 melding
Dinsdag 25-11-2025 om 14:11
Perronlaan, 3534BG Utrecht

112 melding
Dinsdag 25-11-2025 om 14:06
Perronlaan, 3534BG Utrecht

112 melding
Dinsdag 25-11-2025 om 14:06
Perronlaan, 3534BG Utrecht

112 melding
Dinsdag 25-11-2025 om 14:04
Perronlaan, 3534BG Utrecht

112 melding
Dinsdag 25-11-2025 om 14:03
Perronlaan, 3534BG Utrecht

Direct een e-mail ontvangen bij nieuwe meldingen in deze regio?

Meld je dan GRATIS aan voor de Oozo Alert service voor Schepenbuurt, Cartesiusweg e.o.

Instellen

Meer nieuws in Schepenbuurt, Cartesiusweg e.o.

Weten hoe eenvoudig het is om af te vallen? Zonder pillen en smeersels en zonder je in het zweet te werken!
Kijk op eenvoudig-afvallen.nl

© 2012 - 2025 OOZO.nl - info@oozo.nl - Gegevens verwijderen? | Disclaimer | Privacy statement