Woning Rachmaninoffplantsoen 59 Utrecht

Rachmaninoffplantsoen 59, 3533JX Utrecht

Ontvang updates voor Welgelegen, Den Hommel

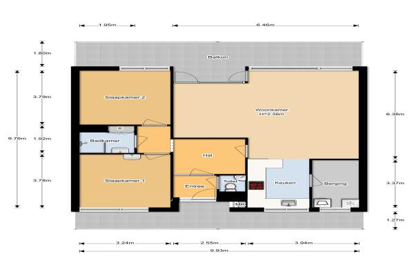
Het adres van deze woning uit 1965 is Rachmaninoffplantsoen 59 te Utrecht. Het pand heeft een oppervlakte van 90m² en heeft 3 kamers kamers waarvan 2 slaapkamers. De geschatte waarde van deze woning is € 225.000.

Bekijk alle woningen in Welgelegen, Den Hommel

Gegevens van Portiekflat

Bouwjaar
1965
Geschatte waarde
€ 225.000
Oppervlakte
90 m2
Inhoud
250 m3
Aantal kamers
3 kamers
Slaapkamers
2
Badkamers
1 badkamer en 1 apart toilet
Soort bouw
Bestaande bouw
Eigendomssituatie
Volle eigendom
Ligging
In woonwijk en vrij uitzicht

Voorzieningen in de buurt

Boodschappen0,6 km
Grote supermarkt0,8 km
Cafetaria0,8 km
Restaurant0,3 km
Huisarts0,7 km
Ziekenhuis4,3 km
Kinderdagverblijf0,6 km
BSO0,5 km
Alle voorzieningen in Welgelegen, Den Hommel

Binnenkijken bij Rachmaninoffplantsoen 59 te Utrecht

Meer meldingen in deze omgeving

Binnenkijken bij
Dinsdag 11-11-2025
Ravellaan 151, 3533JL Utrecht

Binnenkijken bij
Dinsdag 11-11-2025
Deliuslaan 52, 3533JS Utrecht

Nieuw bedrijf
November 2025
Rachmaninoffplantsoen 199, 3533JZ Utrecht

Nieuw bedrijf
Oktober 2025
Rachmaninoffplantsoen 12, 3533JW Utrecht

Binnenkijken bij
Woensdag 29-10-2025
Leidseweg 133, 3533HD Utrecht

Nieuw bedrijf
Oktober 2025
Leidseweg 96, 3533HA Utrecht

Binnenkijken bij
Zondag 19-10-2025
Rachmaninoffplantsoen 51, 3533JX Utrecht

112 melding
Donderdag 16-10-2025 om 08:22
Kennedylaan, Utrecht

Direct een e-mail ontvangen bij nieuwe meldingen in deze regio?

Meld je dan GRATIS aan voor de Oozo Alert service voor Welgelegen, Den Hommel

Instellen

Meer nieuws in Welgelegen, Den Hommel

Weten hoe eenvoudig het is om af te vallen? Zonder pillen en smeersels en zonder je in het zweet te werken!
Kijk op eenvoudig-afvallen.nl

© 2012 - 2025 OOZO.nl - info@oozo.nl - Gegevens verwijderen? | Disclaimer | Privacy statement