Woning Wageningseberg 34 Utrecht

Wageningseberg 34, 3524LR Utrecht

Ontvang updates voor Lunetten-Noord

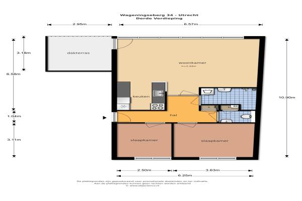
Het adres van deze woning uit 1991 is Wageningseberg 34 te Utrecht. Het pand heeft een oppervlakte van 70m² en heeft 3 kamers kamers waarvan 2 slaapkamers. De geschatte waarde van deze woning is € 239.000.

Bekijk alle woningen in Lunetten-Noord

Gegevens van Portiekwoning (appartement)

Bouwjaar
1991
Geschatte waarde
€ 239.000
Oppervlakte
70 m2
Inhoud
209 m3
Aantal kamers
3 kamers
Slaapkamers
2
Badkamers
1 badkamer en 1 apart toilet
Soort bouw
Bestaande bouw
Eigendomssituatie
Gemeentelijke erfpacht
Ligging
Aan rustige weg, in woonwijk en vrij uitzicht
Tuin
Zonneterras

Voorzieningen in de buurt

Boodschappen0,4 km
Grote supermarkt0,4 km
Cafetaria0,4 km
Restaurant0,4 km
Huisarts0,4 km
Ziekenhuis2,8 km
Kinderdagverblijf0,4 km
BSO0,5 km
Alle voorzieningen in Lunetten-Noord

Binnenkijken bij Wageningseberg 34 te Utrecht

Meer meldingen in deze omgeving

Binnenkijken bij
Woensdag 21-1-2026
Hondsrug 207, 3524BW Utrecht

Binnenkijken bij
Woensdag 21-1-2026
Salland 4, 3524TZ Utrecht

Nieuw bedrijf
Januari 2026
Fivelingo 143, 3524BL Utrecht

Binnenkijken bij
Zaterdag 17-1-2026
Reiderland 34, 3524BA Utrecht

Binnenkijken bij
Donderdag 15-1-2026
Texel 83, 3524AS Utrecht

Binnenkijken bij
Dinsdag 13-1-2026
Wageningseberg 170, 3524LT Utrecht

Binnenkijken bij
Vrijdag 9-1-2026
Texel 97, 3524AS Utrecht

Binnenkijken bij
Woensdag 7-1-2026
Wageningseberg 196, 3524LV Utrecht

Direct een e-mail ontvangen bij nieuwe meldingen in deze regio?

Meld je dan GRATIS aan voor de Oozo Alert service voor Lunetten-Noord

Instellen

Meer nieuws in Lunetten-Noord

Weten hoe eenvoudig het is om af te vallen? Zonder pillen en smeersels en zonder je in het zweet te werken!
Kijk op eenvoudig-afvallen.nl

© 2012 - 2026 OOZO.nl - info@oozo.nl - Gegevens verwijderen? | Disclaimer | Privacy statement