Woning Musketierlaan 55 Utrecht

Musketierlaan 55, 3525GZ Utrecht

Ontvang updates voor Nieuw Hoograven-Zuid

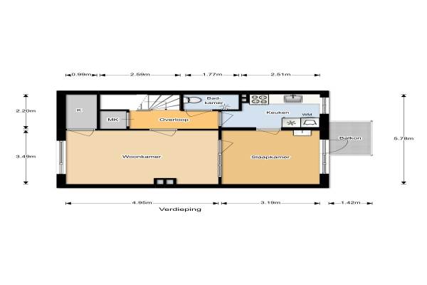
Het adres van deze woning uit 1960 is Musketierlaan 55 te Utrecht. Het pand heeft een oppervlakte van 49m² en heeft 2 kamers kamers waarvan 1 slaapkamers. De geschatte waarde van deze woning is € 135.000.

Bekijk alle woningen in Nieuw Hoograven-Zuid

Gegevens van Bovenwoning (appartement)

Bouwjaar
1960
Geschatte waarde
€ 135.000
Oppervlakte
49 m2
Inhoud
140 m3
Aantal kamers
2 kamers
Slaapkamers
1
Badkamers
1 badkamer
Soort bouw
Bestaande bouw
Eigendomssituatie
Gemeentelijke erfpacht
Ligging
In woonwijk en vrij uitzicht

Voorzieningen in de buurt

Boodschappen0,3 km
Grote supermarkt0,7 km
Cafetaria0,7 km
Restaurant1,0 km
Huisarts0,9 km
Ziekenhuis3,2 km
Kinderdagverblijf0,4 km
BSO0,5 km
Alle voorzieningen in Nieuw Hoograven-Zuid

Binnenkijken bij Musketierlaan 55 te Utrecht

Meer meldingen in deze omgeving

Nieuw bedrijf
December 2025
Pagelaan 113, 3525GW Utrecht

Nieuw bedrijf
December 2025
Hooft Graaflandstraat 28A, 3525VV Utrecht

Binnenkijken bij
Vrijdag 28-11-2025
Linschotensingel 1DA, 3525XA Utrecht

Binnenkijken bij
Vrijdag 21-11-2025
Huis te Vlietlaan 6, 3525CH Utrecht

Nieuw bedrijf
November 2025
Musketierlaan 15, 3525GX Utrecht

Nieuw bedrijf
November 2025
Pagelaan 467, 3525GW Utrecht

Nieuw bedrijf
November 2025
Hooft Graaflandstraat 126, 3525VZ Utrecht

112 melding
Donderdag 20-11-2025 om 12:56
Vronesteinlaan, Utrecht

Direct een e-mail ontvangen bij nieuwe meldingen in deze regio?

Meld je dan GRATIS aan voor de Oozo Alert service voor Nieuw Hoograven-Zuid

Instellen

Meer nieuws in Nieuw Hoograven-Zuid

Weten hoe eenvoudig het is om af te vallen? Zonder pillen en smeersels en zonder je in het zweet te werken!
Kijk op eenvoudig-afvallen.nl

© 2012 - 2025 OOZO.nl - info@oozo.nl - Gegevens verwijderen? | Disclaimer | Privacy statement