Woning Julianaweg 145 Utrecht

Julianaweg 145, 3525VD Utrecht

Ontvang updates voor Oud Hoograven-Zuid

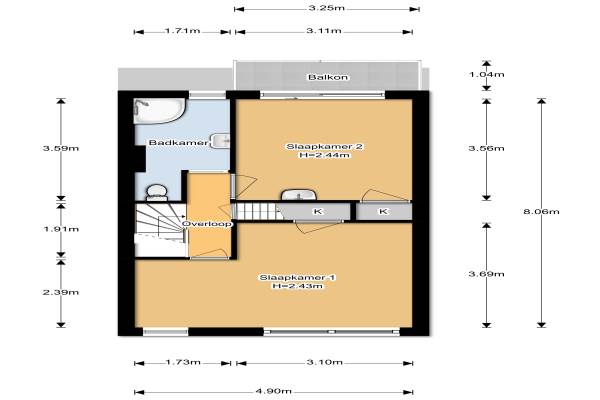
Het adres van deze woning uit 1936 is Julianaweg 145 te Utrecht. Het pand heeft een oppervlakte van 100m² en een perceeloppervlakte van 125m² en heeft 4 kamers kamers waarvan 3 slaapkamers. De geschatte waarde van deze woning is € 375.000.

Bekijk alle woningen in Oud Hoograven-Zuid

Gegevens van Eengezinswoning, tussenwoning

Bouwjaar
1936
Geschatte waarde
€ 375.000
Oppervlakte
100 m2
Inhoud
340 m3
Aantal kamers
4 kamers
Slaapkamers
3
Badkamers
1 badkamer en 1 apart toilet
Soort bouw
Bestaande bouw
Eigendomssituatie
Volle eigendom
Tuin
Achtertuin en voortuin
Achtertuin
61 m² (11,8m diep en 5,17m breed)

Voorzieningen in de buurt

Boodschappen0,5 km
Grote supermarkt0,6 km
Cafetaria0,6 km
Restaurant0,9 km
Huisarts0,9 km
Ziekenhuis3,3 km
Kinderdagverblijf0,6 km
BSO0,4 km
Alle voorzieningen in Oud Hoograven-Zuid

Binnenkijken bij Julianaweg 145 te Utrecht

Meer meldingen in deze omgeving

Nieuw bedrijf
Februari 2026
Verlengde Hoogravenseweg 108, 3525BJ Utrecht

Nieuw bedrijf
Februari 2026
Verlengde Hoogravenseweg 150A, 3525BL Utrecht

Nieuw bedrijf
Januari 2026
Verlengde Hoogravenseweg 130, 3525BK Utrecht

Binnenkijken bij
Zondag 25-1-2026
Verlengde Hoogravenseweg 64, 3525BH Utrecht

Binnenkijken bij
Donderdag 15-1-2026
Hooft Graaflandstraat 21, 3525VM Utrecht

Binnenkijken bij
Zaterdag 10-1-2026
Verlengde Hoogravenseweg 62, 3525BH Utrecht

Nieuw bedrijf
Januari 2026
Hooft Graaflandstraat 55, 3525VN Utrecht

Nieuw bedrijf
Januari 2026
Julianaweg 138, 3525VJ Utrecht

Direct een e-mail ontvangen bij nieuwe meldingen in deze regio?

Meld je dan GRATIS aan voor de Oozo Alert service voor Oud Hoograven-Zuid

Instellen

Meer nieuws in Oud Hoograven-Zuid

Weten hoe eenvoudig het is om af te vallen? Zonder pillen en smeersels en zonder je in het zweet te werken!
Kijk op eenvoudig-afvallen.nl

© 2012 - 2026 OOZO.nl - info@oozo.nl - Gegevens verwijderen? | Disclaimer | Privacy statement