Woning Smaragdplein 16 Utrecht

Smaragdplein 16, 3523EA Utrecht

Ontvang updates voor Tolsteeg en Rotsoord

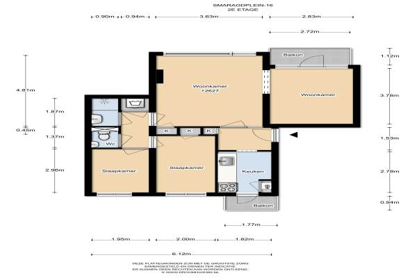
Het adres van deze woning uit 1959 is Smaragdplein 16 te Utrecht. Het pand heeft een oppervlakte van 61m² en heeft 4 kamers kamers waarvan 2 slaapkamers. De geschatte waarde van deze woning is € 215.000.

Bekijk alle woningen in Tolsteeg en Rotsoord

Gegevens van Portiekflat (appartement)

Bouwjaar
1959
Geschatte waarde
€ 215.000
Oppervlakte
61 m2
Inhoud
192 m3
Aantal kamers
4 kamers
Slaapkamers
2
Badkamers
1 badkamer en 1 apart toilet
Soort bouw
Bestaande bouw
Eigendomssituatie
Volle eigendom
Ligging
In woonwijk

Voorzieningen in de buurt

Boodschappen0,3 km
Grote supermarkt0,3 km
Cafetaria0,3 km
Restaurant0,4 km
Huisarts0,8 km
Ziekenhuis2,1 km
Kinderdagverblijf0,6 km
BSO0,6 km
Alle voorzieningen in Tolsteeg en Rotsoord

Binnenkijken bij Smaragdplein 16 te Utrecht

Meer meldingen in deze omgeving

Binnenkijken bij
Zondag 19-10-2025
Briljantlaan 116, 3523CJ Utrecht

Binnenkijken bij
Zondag 19-10-2025
Tolsteegplantsoen 323, 3523AK Utrecht

Binnenkijken bij
Vrijdag 17-10-2025
Looplantsoen 164, 3523GX Utrecht

Binnenkijken bij
Vrijdag 17-10-2025
Tolsteegplantsoen 20, 3523AG Utrecht

112 melding
Vrijdag 17-10-2025 om 00:51
Helling, Utrecht

Nieuw bedrijf
Oktober 2025
Barnsteenlaan 63, 3523BC Utrecht

Nieuw bedrijf
Oktober 2025
Barnsteenlaan 63, 3523BC Utrecht

Binnenkijken bij
Zaterdag 11-10-2025
Smaragdplein 191, 3523EE Utrecht

Direct een e-mail ontvangen bij nieuwe meldingen in deze regio?

Meld je dan GRATIS aan voor de Oozo Alert service voor Tolsteeg en Rotsoord

Instellen

Meer nieuws in Tolsteeg en Rotsoord

Weten hoe eenvoudig het is om af te vallen? Zonder pillen en smeersels en zonder je in het zweet te werken!
Kijk op eenvoudig-afvallen.nl

© 2012 - 2025 OOZO.nl - info@oozo.nl - Gegevens verwijderen? | Disclaimer | Privacy statement