Woning Voorsterbeeklaan 106 Utrecht

Voorsterbeeklaan 106, 3521DE Utrecht

Ontvang updates voor Dichterswijk

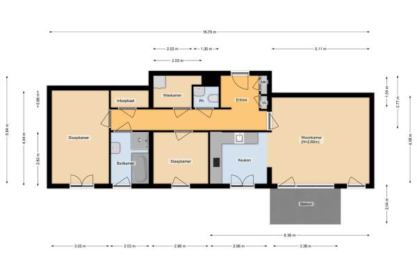
Het adres van deze woning uit 2014 is Voorsterbeeklaan 106 te Utrecht. Het pand heeft een oppervlakte van 85m² en heeft 3 kamers kamers waarvan 2 slaapkamers. De geschatte waarde van deze woning is € 535.000.

Bekijk alle woningen in Dichterswijk

Gegevens van Portiekflat (appartement)

Bouwjaar
2014
Geschatte waarde
€ 535.000
Oppervlakte
85 m2
Inhoud
273 m3
Aantal kamers
3 kamers
Slaapkamers
2
Badkamers
1 badkamer en 1 apart toilet
Soort bouw
Bestaande bouw
Eigendomssituatie
Gemeentelijk eigendom belast met erfpacht
Ligging
Aan rustige weg, in centrum en in woonwijk

Voorzieningen in de buurt

Boodschappen0,2 km
Grote supermarkt0,3 km
Cafetaria0,6 km
Restaurant0,2 km
Huisarts0,4 km
Ziekenhuis2,3 km
Kinderdagverblijf0,3 km
BSO0,3 km
Alle voorzieningen in Dichterswijk

Binnenkijken bij Voorsterbeeklaan 106 te Utrecht

Meer meldingen in deze omgeving

Binnenkijken bij
Donderdag 12-3-2026
Bolksbeekstraat 58BS, 3521CV Utrecht

Binnenkijken bij
Donderdag 12-3-2026
Coornhertstraat 25, 3521XE Utrecht

Binnenkijken bij
Donderdag 12-3-2026
Croeselaan 281B, 3521BS Utrecht

Binnenkijken bij
Dinsdag 10-3-2026
Veilinghavenkade 151, 3521AT Utrecht

112 melding
Maandag 9-3-2026 om 17:25
Hubert Pootstraat, 3521VA Utrecht

Faillissement
Maandag 9-3-2026
Croeselaan 395, 3521BZ Utrecht

Binnenkijken bij
Maandag 9-3-2026
Croeselaan 227BS, 3521BP Utrecht

Binnenkijken bij
Maandag 9-3-2026
Voorsterbeeklaan 120, 3521DG Utrecht

Direct een e-mail ontvangen bij nieuwe meldingen in deze regio?

Meld je dan GRATIS aan voor de Oozo Alert service voor Dichterswijk

Instellen

Meer nieuws in Dichterswijk

Weten hoe eenvoudig het is om af te vallen? Zonder pillen en smeersels en zonder je in het zweet te werken!
Kijk op eenvoudig-afvallen.nl

© 2012 - 2026 OOZO.nl - info@oozo.nl - Gegevens verwijderen? | Disclaimer | Privacy statement