Woning Waterhoen 2 Doorn

Waterhoen 2, 3941NK Doorn

Ontvang updates voor De Wijngaard

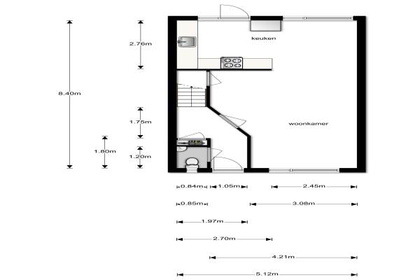
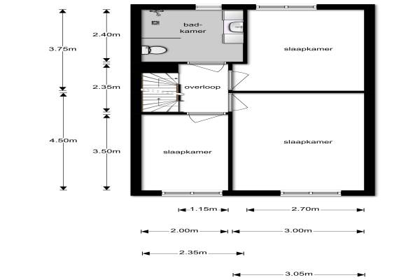
Het adres van deze woning uit 1986 is Waterhoen 2 te Doorn. Het pand heeft een oppervlakte van 116m² en een perceeloppervlakte van 179m² en heeft 5 kamers kamers waarvan 4 slaapkamers. De geschatte waarde van deze woning is € 300.000.

Bekijk alle woningen in De Wijngaard

Gegevens van Eengezinswoning, hoekwoning

Bouwjaar
1986
Geschatte waarde
€ 300.000
Oppervlakte
116 m2
Inhoud
325 m3
Aantal kamers
5 kamers
Slaapkamers
4
Badkamers
1 badkamer en 1 apart toilet
Soort bouw
Bestaande bouw
Eigendomssituatie
Volle eigendom
Ligging
Aan rustige weg en in woonwijk
Tuin
Achtertuin
Achtertuin
83 m² (11m diep en 7,5m breed)

Voorzieningen in de buurt

Boodschappen1,0 km
Grote supermarkt1,1 km
Cafetaria1,0 km
Restaurant0,7 km
Huisarts1,1 km
Ziekenhuis1,5 km
Kinderdagverblijf0,4 km
BSO0,5 km
Alle voorzieningen in De Wijngaard

Binnenkijken bij Waterhoen 2 te Doorn

Meer meldingen in deze omgeving

Binnenkijken bij
Zondag 19-10-2025
Haverakker 9, 3941LD Doorn

Binnenkijken bij
Zondag 19-10-2025
Kievit 10, 3941NL Doorn

Binnenkijken bij
Zondag 12-10-2025
Vogelweide 95, 3941NE Doorn

112 melding
Maandag 6-10-2025 om 19:40
Braam, 3941SK Doorn

112 melding
Maandag 6-10-2025 om 19:38
Braam, 3941SK Doorn

Binnenkijken bij
Vrijdag 19-9-2025
de Beaufortweg 24, 3941PB Doorn

Binnenkijken bij
Vrijdag 19-9-2025
Perengaard 16, 3941LX Doorn

112 melding
Woensdag 10-9-2025 om 10:23
Braam, 3941SK Doorn

Direct een e-mail ontvangen bij nieuwe meldingen in deze regio?

Meld je dan GRATIS aan voor de Oozo Alert service voor De Wijngaard

Instellen

Meer nieuws in De Wijngaard

Weten hoe eenvoudig het is om af te vallen? Zonder pillen en smeersels en zonder je in het zweet te werken!
Kijk op eenvoudig-afvallen.nl

© 2012 - 2025 OOZO.nl - info@oozo.nl - Gegevens verwijderen? | Disclaimer | Privacy statement