Woning Montroselaan 36 Doorn

Montroselaan 36, 3941HN Doorn

Ontvang updates voor Doorn-Centrum

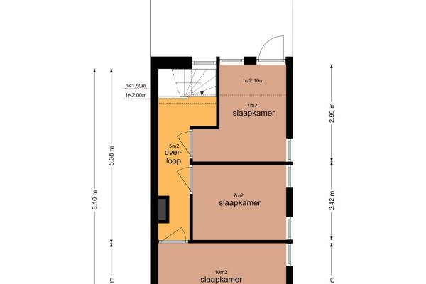
Het adres van deze woning is Montroselaan 36 te Doorn. Het pand heeft een oppervlakte van 89m² en een perceeloppervlakte van 220m² en heeft 4 kamers kamers waarvan 3 slaapkamers. De geschatte waarde van deze woning is € 495.000.

Bekijk alle woningen in Doorn-Centrum

Gegevens van Eengezinswoning, halfvrijstaande woning

Geschatte waarde
€ 495.000
Oppervlakte
89 m2
Inhoud
351 m3
Aantal kamers
4 kamers
Slaapkamers
3
Badkamers
1 badkamer
Soort bouw
Bestaande bouw
Eigendomssituatie
Volle eigendom
Ligging
Aan rustige weg, in bosrijke omgeving, in woonwijk en vrij uitzicht
Tuin
Achtertuin en voortuin
Achtertuin
74 m² (13,5 meter diep en 5,5 meter breed)

Voorzieningen in de buurt

Boodschappen0,4 km
Grote supermarkt0,6 km
Cafetaria0,5 km
Restaurant0,3 km
Huisarts0,6 km
Ziekenhuis1,0 km
Kinderdagverblijf1,0 km
BSO0,5 km
Alle voorzieningen in Doorn-Centrum

Binnenkijken bij Montroselaan 36 te Doorn

Meer meldingen in deze omgeving

Nieuw bedrijf
Oktober 2025
Kortenburglaan 24, 3941HR Doorn

Nieuw bedrijf
Oktober 2025
Vossenweg 15c, 3941GS Doorn

Nieuw bedrijf
Oktober 2025
Eikenlaan 19, 3941GP Doorn

Nieuw bedrijf
Oktober 2025
Oude Woudenbergseweg 17, 3941JN Doorn

Faillissement
Dinsdag 30-9-2025
Prins Bernhardlaan 12, 3941EB Doorn

Binnenkijken bij
Dinsdag 30-9-2025
Eikenlaan 14, 3941GR Doorn

Binnenkijken bij
Maandag 22-9-2025
Kampweg 9A, 3941HC Doorn

Binnenkijken bij
Vrijdag 19-9-2025
Amersfoortseweg 7C, 3941EJ Doorn

Direct een e-mail ontvangen bij nieuwe meldingen in deze regio?

Meld je dan GRATIS aan voor de Oozo Alert service voor Doorn-Centrum

Instellen

Meer nieuws in Doorn-Centrum

Weten hoe eenvoudig het is om af te vallen? Zonder pillen en smeersels en zonder je in het zweet te werken!
Kijk op eenvoudig-afvallen.nl

© 2012 - 2025 OOZO.nl - info@oozo.nl - Gegevens verwijderen? | Disclaimer | Privacy statement