Woning Lindelaan 28 Driebergen-Rijsenburg

Lindelaan 28, 3971HB Driebergen-Rijsenburg

Ontvang updates voor Kom Driebergen en Seminarie

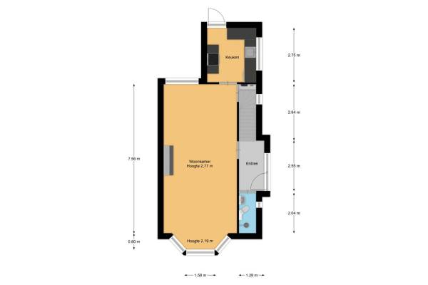
Het adres van deze woning uit 1938 is Lindelaan 28 te Driebergen-Rijsenburg. Het pand heeft een oppervlakte van 93m² en een perceeloppervlakte van 282m² en heeft 4 kamers kamers waarvan 3 slaapkamers. De geschatte waarde van deze woning is € 625.000.

Bekijk alle woningen in Kom Driebergen en Seminarie

Gegevens van Eengezinswoning, 2-onder-1-kapwoning

Bouwjaar
1938
Geschatte waarde
€ 625.000
Oppervlakte
93 m2
Inhoud
346 m3
Aantal kamers
4 kamers
Slaapkamers
3
Badkamers
1 badkamer en 1 apart toilet
Soort bouw
Bestaande bouw
Eigendomssituatie
Volle eigendom
Ligging
Aan rustige weg, in centrum en in woonwijk
Tuin
Achtertuin
Achtertuin
78 m² (12 meter diep en 6,5 meter breed)

Voorzieningen in de buurt

Boodschappen0,2 km
Grote supermarkt0,4 km
Cafetaria0,3 km
Restaurant0,2 km
Huisarts0,9 km
Ziekenhuis5,4 km
Kinderdagverblijf0,4 km
BSO0,4 km
Alle voorzieningen in Kom Driebergen en Seminarie

Binnenkijken bij Lindelaan 28 te Driebergen-Rijsenburg

Meer meldingen in deze omgeving

Binnenkijken bij
Woensdag 7-1-2026
Traaij 121, 3971GE Driebergen-Rijsenburg

Binnenkijken bij
Woensdag 7-1-2026
Oranjelaan 42, 3971HH Driebergen-Rijsenburg

Nieuw bedrijf
December 2025
Traaij 164, 3971GT DRIEBERGEN-RIJSENBURG

Nieuw bedrijf
December 2025
Bosstraat 106, 3971XH Driebergen-Rijsenburg

Binnenkijken bij
Woensdag 24-12-2025
Oranjelaan 4, 3971HG Driebergen-Rijsenburg

Binnenkijken bij
Woensdag 24-12-2025
de Griffel 17, 3971CZ Driebergen-Rijsenburg

Nieuw bedrijf
December 2025
Oranjelaan 12, 3971HG Driebergen-Rijsenburg

Nieuw bedrijf
December 2025
Bosstraat 106, 3971XH DRIEBERGEN-RIJSENBURG

Direct een e-mail ontvangen bij nieuwe meldingen in deze regio?

Meld je dan GRATIS aan voor de Oozo Alert service voor Kom Driebergen en Seminarie

Instellen

Meer nieuws in Kom Driebergen en Seminarie

Weten hoe eenvoudig het is om af te vallen? Zonder pillen en smeersels en zonder je in het zweet te werken!
Kijk op eenvoudig-afvallen.nl

© 2012 - 2026 OOZO.nl - info@oozo.nl - Gegevens verwijderen? | Disclaimer | Privacy statement