Woning Kapelweg 48 Maarn

Kapelweg 48, 3951AD Maarn

Ontvang updates voor Maarn waaronder Klein Amsterdam

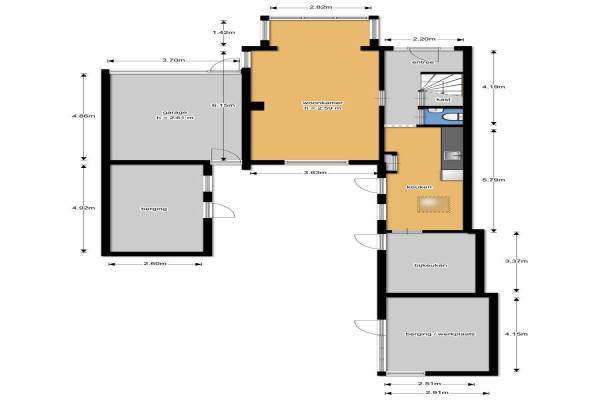
Het adres van deze woning uit 1958 is Kapelweg 48 te Maarn. Het pand heeft een oppervlakte van 111m² en een perceeloppervlakte van 318m² en heeft 5 kamers kamers waarvan 4 slaapkamers. De geschatte waarde van deze woning is € 265.000.

Bekijk alle woningen in Maarn waaronder Klein Amsterdam

Gegevens van Eengezinswoning, 2-onder-1-kapwoning

Bouwjaar
1958
Geschatte waarde
€ 265.000
Oppervlakte
111 m2
Inhoud
588 m3
Aantal kamers
5 kamers
Slaapkamers
4
Badkamers
1 badkamer en 1 apart toilet
Soort bouw
Bestaande bouw
Eigendomssituatie
Volle eigendom
Ligging
In bosrijke omgeving en in centrum
Tuin
Achtertuin en voortuin
Achtertuin
176 m² (22m diep en 8m breed)

Voorzieningen in de buurt

Boodschappen0,6 km
Grote supermarkt0,7 km
Cafetaria0,7 km
Restaurant0,5 km
Huisarts0,7 km
Ziekenhuis5,1 km
Kinderdagverblijf1,2 km
BSO0,7 km
Alle voorzieningen in Maarn waaronder Klein Amsterdam

Binnenkijken bij Kapelweg 48 te Maarn

Meer meldingen in deze omgeving

Nieuw bedrijf
December 2025
Tuindorpweg 64, 3951BH Maarn

Nieuw bedrijf
December 2025
Hertenlaan 16, 3951AT Maarn

Nieuw bedrijf
December 2025
Raadhuislaan 11a, 3951CH Maarn

Nieuw bedrijf
December 2025
Plutohof 2, 3951EG Maarn

Nieuw bedrijf
December 2025
Kuiperlaan 12, 3951VH Maarn

Nieuw bedrijf
December 2025
Kuiperlaan 12, 3951VH Maarn

Nieuw bedrijf
December 2025
Klein Amsterdam 86, 3951VV Maarn

Nieuw bedrijf
November 2025
Buurtsteeg 10, 3951LM Maarn

Direct een e-mail ontvangen bij nieuwe meldingen in deze regio?

Meld je dan GRATIS aan voor de Oozo Alert service voor Maarn waaronder Klein Amsterdam

Instellen

Meer nieuws in Maarn waaronder Klein Amsterdam

Weten hoe eenvoudig het is om af te vallen? Zonder pillen en smeersels en zonder je in het zweet te werken!
Kijk op eenvoudig-afvallen.nl

© 2012 - 2025 OOZO.nl - info@oozo.nl - Gegevens verwijderen? | Disclaimer | Privacy statement