Woning Kruisbeklaan 1 Maarn

Kruisbeklaan 1, 3951WL Maarn

Ontvang updates voor Maarn waaronder Klein Amsterdam

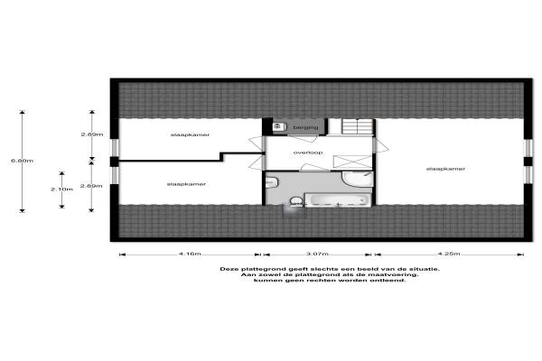
Het adres van deze woning uit 1993 is Kruisbeklaan 1 te Maarn. Het pand heeft een oppervlakte van 145m² en een perceeloppervlakte van 370m² en heeft 5 kamers kamers waarvan 3 slaapkamers. De geschatte waarde van deze woning is € 695.000.

Bekijk alle woningen in Maarn waaronder Klein Amsterdam

Gegevens van Eengezinswoning, vrijstaande woning

Bouwjaar
1993
Geschatte waarde
€ 695.000
Oppervlakte
145 m2
Inhoud
413 m3
Aantal kamers
5 kamers
Slaapkamers
3
Badkamers
1 badkamer en 1 apart toilet
Soort bouw
Bestaande bouw
Eigendomssituatie
Volle eigendom
Ligging
Aan bosrand, aan rustige weg en in woonwijk
Tuin
Tuin rondom

Voorzieningen in de buurt

Boodschappen0,6 km
Grote supermarkt0,7 km
Cafetaria0,7 km
Restaurant0,5 km
Huisarts0,7 km
Ziekenhuis5,1 km
Kinderdagverblijf1,2 km
BSO0,7 km
Alle voorzieningen in Maarn waaronder Klein Amsterdam

Binnenkijken bij Kruisbeklaan 1 te Maarn

Meer meldingen in deze omgeving

Binnenkijken bij
Zaterdag 14-2-2026
Kruisbeklaan 3, 3951WL Maarn

Faillissement
Woensdag 11-2-2026
Amersfoortseweg 38, 3951LC Maarn

112 melding
Dinsdag 10-2-2026 om 21:37
Venushof, 3951EN Maarn

112 melding
Dinsdag 10-2-2026 om 21:37
Venushof, 3951EN Maarn

112 melding
Dinsdag 10-2-2026 om 21:36
Venushof, 3951EN Maarn

Binnenkijken bij
Zaterdag 7-2-2026
Tromplaan 10, 3951CL Maarn

Nieuw bedrijf
Februari 2026
Amersfoortseweg 54a, 3951LC Maarn

Nieuw bedrijf
Februari 2026
Wethouder de Bruinlaan 14, 3951XP Maarn

Direct een e-mail ontvangen bij nieuwe meldingen in deze regio?

Meld je dan GRATIS aan voor de Oozo Alert service voor Maarn waaronder Klein Amsterdam

Instellen

Meer nieuws in Maarn waaronder Klein Amsterdam

Weten hoe eenvoudig het is om af te vallen? Zonder pillen en smeersels en zonder je in het zweet te werken!
Kijk op eenvoudig-afvallen.nl

© 2012 - 2026 OOZO.nl - info@oozo.nl - Gegevens verwijderen? | Disclaimer | Privacy statement