Woning Rijksweg 160 Berg en Terblijt

Rijksweg 160, 6325AH Berg en Terblijt

Ontvang updates voor Vilt

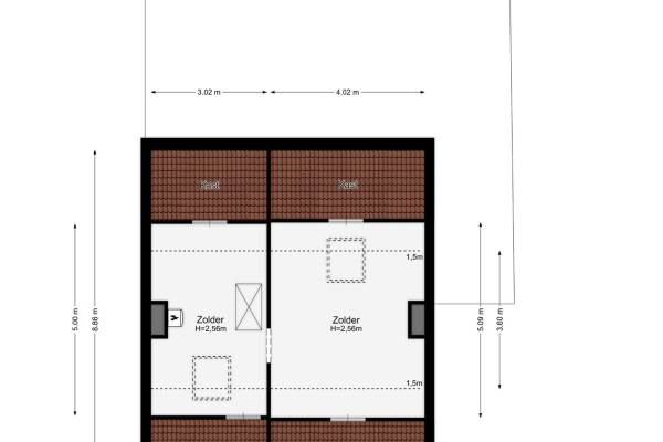
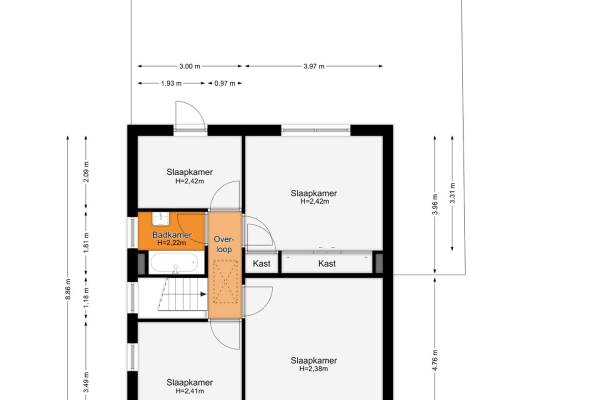
Het adres van deze woning uit 1964 is Rijksweg 160 te Berg en Terblijt. Het pand heeft een oppervlakte van 162m² en een perceeloppervlakte van 790m² en heeft 6 kamers kamers waarvan 4 slaapkamers. De geschatte waarde van deze woning is € 449.000.

Bekijk alle woningen in Vilt

Gegevens van Eengezinswoning, vrijstaande woning

Bouwjaar
1964
Geschatte waarde
€ 449.000
Oppervlakte
162 m2
Inhoud
751 m3
Aantal kamers
6 kamers
Slaapkamers
4
Badkamers
1 badkamer en 1 apart toilet
Soort bouw
Bestaande bouw
Eigendomssituatie
Volle eigendom
Ligging
Vrij uitzicht
Tuin
Achtertuin

Voorzieningen in de buurt

Boodschappen1,9 km
Grote supermarkt2,2 km
Cafetaria1,7 km
Restaurant0,8 km
Huisarts1,6 km
Ziekenhuis6,0 km
Kinderdagverblijf1,4 km
BSO1,4 km
Alle voorzieningen in Vilt

Binnenkijken bij Rijksweg 160 te Berg en Terblijt

Meer meldingen in deze omgeving

Binnenkijken bij
Dinsdag 25-11-2025
Meesweg 8, 6325BG Berg en Terblijt

Binnenkijken bij
Dinsdag 11-11-2025
Nachtegaalstraat 14, 6325AX Berg en Terblijt

Nieuw bedrijf
Oktober 2025
Pater Tilliestraat 17, 6325AL Berg en Terblijt

Nieuw bedrijf
Oktober 2025
Pater Tilliestraat 17, 6325AL Berg en Terblijt

Binnenkijken bij
Zondag 19-10-2025
Merelstraat 11, 6325AV Berg en Terblijt

Binnenkijken bij
Maandag 22-9-2025
Merelstraat 5, 6325AV Berg en Terblijt

112 melding
Zaterdag 20-9-2025 om 14:07
Pater Tilliestraat, 6325AL Berg en Terblijt

Binnenkijken bij
Zondag 27-7-2025
Leijstenstraat 6, 6325AR Berg en Terblijt

Direct een e-mail ontvangen bij nieuwe meldingen in deze regio?

Meld je dan GRATIS aan voor de Oozo Alert service voor Vilt

Instellen

Meer nieuws in Vilt

Weten hoe eenvoudig het is om af te vallen? Zonder pillen en smeersels en zonder je in het zweet te werken!
Kijk op eenvoudig-afvallen.nl

© 2012 - 2025 OOZO.nl - info@oozo.nl - Gegevens verwijderen? | Disclaimer | Privacy statement