Woning Baardgras 15 Veenendaal

Baardgras 15, 3902RN Veenendaal

Ontvang updates voor Dragonder-Noord

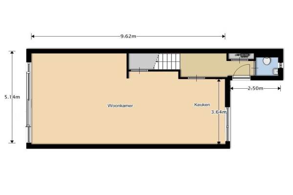
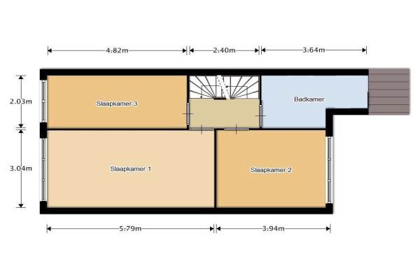
Het adres van deze woning uit 1978 is Baardgras 15 te Veenendaal. Het pand heeft een oppervlakte van 140m² en een perceeloppervlakte van 145m² en heeft 6 kamers kamers waarvan 5 slaapkamers. De geschatte waarde van deze woning is € 249.900.

Bekijk alle woningen in Dragonder-Noord

Gegevens van Eengezinswoning, tussenwoning

Bouwjaar
1978
Geschatte waarde
€ 249.900
Oppervlakte
140 m2
Inhoud
425 m3
Aantal kamers
6 kamers
Slaapkamers
5
Badkamers
1 badkamer en 2 aparte toiletten
Soort bouw
Bestaande bouw
Eigendomssituatie
Volle eigendom
Ligging
Aan rustige weg en in woonwijk
Tuin
Achtertuin en voortuin
Achtertuin
57 m² (10,8m diep en 5,3m breed)

Voorzieningen in de buurt

Boodschappen0,4 km
Grote supermarkt0,4 km
Cafetaria0,8 km
Restaurant0,4 km
Huisarts0,9 km
Ziekenhuis2,8 km
Kinderdagverblijf0,4 km
BSO0,5 km
Alle voorzieningen in Dragonder-Noord

Binnenkijken bij Baardgras 15 te Veenendaal

Meer meldingen in deze omgeving

Binnenkijken bij
Donderdag 22-1-2026
't Melkhuis 9, 3902CW Veenendaal

Nieuw bedrijf
Januari 2026
Beemdgras 9, 3902AK Veenendaal

Nieuw bedrijf
Januari 2026
Pampagras 114, 3902SV Veenendaal

Faillissement
Vrijdag 16-1-2026
De Schelf 33, 3902RA Veenendaal

112 melding
Zaterdag 10-1-2026 om 14:35
Lemoen, Veenendaal

112 melding
Zaterdag 3-1-2026 om 05:34
Korte Dreef, Veenendaal

112 melding
Zaterdag 3-1-2026 om 05:27
Korte Dreef, Veenendaal

Binnenkijken bij
Zaterdag 3-1-2026
Gersteveld 44, 3902ES Veenendaal

Direct een e-mail ontvangen bij nieuwe meldingen in deze regio?

Meld je dan GRATIS aan voor de Oozo Alert service voor Dragonder-Noord

Instellen

Meer nieuws in Dragonder-Noord

Weten hoe eenvoudig het is om af te vallen? Zonder pillen en smeersels en zonder je in het zweet te werken!
Kijk op eenvoudig-afvallen.nl

© 2012 - 2026 OOZO.nl - info@oozo.nl - Gegevens verwijderen? | Disclaimer | Privacy statement