Woning Cavalerieweg 37 Veenendaal

Cavalerieweg 37, 3902JR Veenendaal

Ontvang updates voor Dragonder-Oost

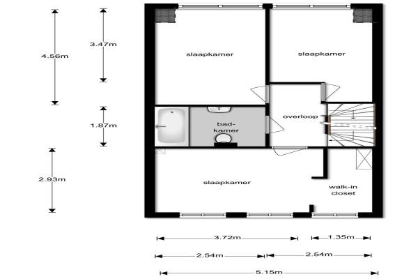
Het adres van deze woning uit 2004 is Cavalerieweg 37 te Veenendaal. Het pand heeft een oppervlakte van 123m² en een perceeloppervlakte van 157m² en heeft 5 kamers kamers waarvan 3 slaapkamers. De geschatte waarde van deze woning is € 280.000.

Bekijk alle woningen in Dragonder-Oost

Gegevens van Eengezinswoning, tussenwoning

Bouwjaar
2004
Geschatte waarde
€ 280.000
Oppervlakte
123 m2
Inhoud
355 m3
Aantal kamers
5 kamers
Slaapkamers
3
Badkamers
1 badkamer en 1 apart toilet
Soort bouw
Bestaande bouw
Eigendomssituatie
Volle eigendom
Ligging
In woonwijk
Tuin
Achtertuin en voortuin
Achtertuin
55 m² (11m diep en 5m breed)

Voorzieningen in de buurt

Boodschappen1,4 km
Grote supermarkt1,1 km
Cafetaria1,3 km
Restaurant1,4 km
Huisarts1,3 km
Ziekenhuis2,9 km
Kinderdagverblijf1,0 km
BSO0,7 km
Alle voorzieningen in Dragonder-Oost

Binnenkijken bij Cavalerieweg 37 te Veenendaal

Meer meldingen in deze omgeving

Binnenkijken bij
Zondag 25-1-2026
Kozakkenweg 29, 3902JD Veenendaal

Binnenkijken bij
Woensdag 21-1-2026
Jagerspad 25, 3902JH Veenendaal

Binnenkijken bij
Zaterdag 17-1-2026
Spitsbergenweg 31, 3902HM Veenendaal

Nieuw bedrijf
Januari 2026
Hugo de Grootstraat 11, 3902KA Veenendaal

112 melding
Woensdag 31-12-2025 om 15:29
Nansenstraat, Veenendaal

112 melding
Maandag 29-12-2025 om 14:38
Erasmusstraat, 3902KC Veenendaal

112 melding
Zaterdag 13-12-2025 om 17:01
Ruiterijweg, Veenendaal

Nieuw bedrijf
December 2025
Sadatstraat 35, 3902KT Veenendaal

Direct een e-mail ontvangen bij nieuwe meldingen in deze regio?

Meld je dan GRATIS aan voor de Oozo Alert service voor Dragonder-Oost

Instellen

Meer nieuws in Dragonder-Oost

Weten hoe eenvoudig het is om af te vallen? Zonder pillen en smeersels en zonder je in het zweet te werken!
Kijk op eenvoudig-afvallen.nl

© 2012 - 2026 OOZO.nl - info@oozo.nl - Gegevens verwijderen? | Disclaimer | Privacy statement