Woning Beethovenlaan 27 Veenendaal

Beethovenlaan 27, 3906CP Veenendaal

Ontvang updates voor Componistenbuurt

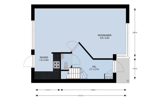
Het adres van deze woning uit 1991 is Beethovenlaan 27 te Veenendaal. Het pand heeft een oppervlakte van 101m² en een perceeloppervlakte van 154m² en heeft 5 kamers kamers waarvan 4 slaapkamers. De geschatte waarde van deze woning is € 239.900.

Bekijk alle woningen in Componistenbuurt

Gegevens van Eengezinswoning, tussenwoning

Bouwjaar
1991
Geschatte waarde
€ 239.900
Oppervlakte
101 m2
Inhoud
303 m3
Aantal kamers
5 kamers
Slaapkamers
4
Badkamers
1 badkamer en 2 aparte toiletten
Soort bouw
Bestaande bouw
Eigendomssituatie
Volle eigendom
Ligging
Aan rustige weg, in woonwijk en vrij uitzicht
Tuin
Achtertuin en voortuin
Achtertuin
83 m² (15m diep en 5,5m breed)

Voorzieningen in de buurt

Boodschappen1,1 km
Grote supermarkt1,1 km
Cafetaria1,1 km
Restaurant1,5 km
Huisarts1,1 km
Ziekenhuis3,0 km
Kinderdagverblijf0,6 km
BSO0,3 km
Alle voorzieningen in Componistenbuurt

Binnenkijken bij Beethovenlaan 27 te Veenendaal

Meer meldingen in deze omgeving

Binnenkijken bij
Zaterdag 13-12-2025
Munnikenweg 42A, 3905MJ Veenendaal

Binnenkijken bij
Zaterdag 6-12-2025
Componistensingel 38, 3906BW Veenendaal

Binnenkijken bij
Dinsdag 25-11-2025
Griegstraat 2, 3906CH Veenendaal

Binnenkijken bij
Dinsdag 25-11-2025
Bachlaan 20, 3906ZK Veenendaal

Nieuw bedrijf
November 2025
Brahmsstraat 15, 3906BB Veenendaal

Binnenkijken bij
Zondag 16-11-2025
Componistensingel 29, 3906BS Veenendaal

Binnenkijken bij
Zaterdag 15-11-2025
Griegstraat 3, 3906CH Veenendaal

Binnenkijken bij
Vrijdag 14-11-2025
Mahlerpad 4, 3906ZM Veenendaal

Direct een e-mail ontvangen bij nieuwe meldingen in deze regio?

Meld je dan GRATIS aan voor de Oozo Alert service voor Componistenbuurt

Instellen

Meer nieuws in Componistenbuurt

Weten hoe eenvoudig het is om af te vallen? Zonder pillen en smeersels en zonder je in het zweet te werken!
Kijk op eenvoudig-afvallen.nl

© 2012 - 2025 OOZO.nl - info@oozo.nl - Gegevens verwijderen? | Disclaimer | Privacy statement