Woning Schadijk 23 Veenendaal

Schadijk 23, 3905XA Veenendaal

Ontvang updates voor Oudeveen en De Schans en omgeving

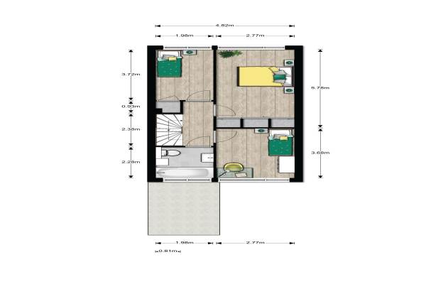
Het adres van deze woning uit 1983 is Schadijk 23 te Veenendaal. Het pand heeft een oppervlakte van 125m² en een perceeloppervlakte van 162m² en heeft 6 kamers kamers waarvan 5 slaapkamers. De geschatte waarde van deze woning is € 264.950.

Bekijk alle woningen in Oudeveen en De Schans en omgeving

Gegevens van Eengezinswoning, tussenwoning

Bouwjaar
1983
Geschatte waarde
€ 264.950
Oppervlakte
125 m2
Inhoud
385 m3
Aantal kamers
6 kamers
Slaapkamers
5
Badkamers
1 badkamer en 1 apart toilet
Soort bouw
Bestaande bouw
Eigendomssituatie
Volle eigendom
Ligging
Aan water, aan rustige weg en in woonwijk
Tuin
Achtertuin en voortuin
Achtertuin
72 m² (14,35m diep en 5m breed)

Voorzieningen in de buurt

Boodschappen0,7 km
Grote supermarkt0,8 km
Cafetaria0,9 km
Restaurant0,8 km
Huisarts1,0 km
Ziekenhuis2,5 km
Kinderdagverblijf0,3 km
BSO0,3 km
Alle voorzieningen in Oudeveen en De Schans en omgeving

Binnenkijken bij Schadijk 23 te Veenendaal

Meer meldingen in deze omgeving

Binnenkijken bij
Woensdag 1-4-2026
Schadijk 21, 3905XA Veenendaal

Binnenkijken bij
Zondag 22-3-2026
Moerschans 35, 3905XS Veenendaal

112 melding
Dinsdag 17-3-2026 om 00:16
Munnikenschans, Veenendaal

Binnenkijken bij
Zondag 15-3-2026
Emmerschans 62, 3905XH Veenendaal

Binnenkijken bij
Vrijdag 27-2-2026
Waterschans 5, 3905XR Veenendaal

Binnenkijken bij
Vrijdag 27-2-2026
Warendorp 55, 3905WE Veenendaal

Nieuw bedrijf
Februari 2026
Vollewens 1, 3905WX Veenendaal

Nieuw bedrijf
Februari 2026
Schenkhorst 20, 3905VE Veenendaal

Direct een e-mail ontvangen bij nieuwe meldingen in deze regio?

Meld je dan GRATIS aan voor de Oozo Alert service voor Oudeveen en De Schans en omgeving

Instellen

Meer nieuws in Oudeveen en De Schans en omgeving

Weten hoe eenvoudig het is om af te vallen? Zonder pillen en smeersels en zonder je in het zweet te werken!
Kijk op eenvoudig-afvallen.nl

© 2012 - 2026 OOZO.nl - info@oozo.nl - Gegevens verwijderen? | Disclaimer | Privacy statement