Woning Leeuwerik 38 Veenendaal

Leeuwerik 38, 3906NJ Veenendaal

Ontvang updates voor Vogelbuurt

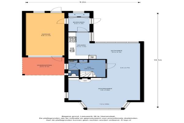
Het adres van deze woning uit 1988 is Leeuwerik 38 te Veenendaal. Het pand heeft 7 kamers kamers waarvan 5 slaapkamers. De geschatte waarde van deze woning is € 419.500.

Bekijk alle woningen in Vogelbuurt

Gegevens van Eengezinswoning, 2-onder-1-kapwoning

Bouwjaar
1988
Geschatte waarde
€ 419.500
Oppervlakte
0 m2
Inhoud
631 m3
Aantal kamers
7 kamers
Slaapkamers
5
Badkamers
2 aparte toiletten
Soort bouw
Bestaande bouw
Eigendomssituatie
Volle eigendom
Ligging
Aan water, aan rustige weg en in woonwijk
Tuin
Achtertuin
Achtertuin
125 m² (12,5m diep en 10m breed)

Voorzieningen in de buurt

Boodschappen0,4 km
Grote supermarkt0,4 km
Cafetaria0,4 km
Restaurant1,5 km
Huisarts0,4 km
Ziekenhuis2,6 km
Kinderdagverblijf0,3 km
BSO0,3 km
Alle voorzieningen in Vogelbuurt

Binnenkijken bij Leeuwerik 38 te Veenendaal

Meer meldingen in deze omgeving

112 melding
Donderdag 22-1-2026 om 03:56
Veenslag, Veenendaal

112 melding
Donderdag 22-1-2026 om 03:03
Veenslag, Veenendaal

Faillissement
Maandag 19-1-2026
Veenslag 6A, 3905SK Veenendaal

112 melding
Zondag 18-1-2026 om 03:52
Verlengde Sportlaan, 3905AE Veenendaal

Binnenkijken bij
Zaterdag 10-1-2026
Slagvink 33, 3906AE Veenendaal

112 melding
Woensdag 24-12-2025 om 19:37
Roodmus, Veenendaal

Binnenkijken bij
Woensdag 24-12-2025
Goudvink 109, 3906AK Veenendaal

Binnenkijken bij
Zaterdag 20-12-2025
Distelvink 33, 3906AM Veenendaal

Direct een e-mail ontvangen bij nieuwe meldingen in deze regio?

Meld je dan GRATIS aan voor de Oozo Alert service voor Vogelbuurt

Instellen

Meer nieuws in Vogelbuurt

Weten hoe eenvoudig het is om af te vallen? Zonder pillen en smeersels en zonder je in het zweet te werken!
Kijk op eenvoudig-afvallen.nl

© 2012 - 2026 OOZO.nl - info@oozo.nl - Gegevens verwijderen? | Disclaimer | Privacy statement