Woning Ritmeesterlaan 30 Veenendaal

Ritmeesterlaan 30, 3903XG Veenendaal

Ontvang updates voor Boslaan en omgeving

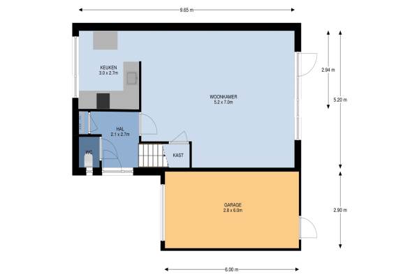
Het adres van deze woning uit 1993 is Ritmeesterlaan 30 te Veenendaal. Het pand heeft een oppervlakte van 120m² en een perceeloppervlakte van 240m² en heeft 5 kamers kamers waarvan 3 slaapkamers. De geschatte waarde van deze woning is € 337.500.

Bekijk alle woningen in Boslaan en omgeving

Gegevens van Eengezinswoning, geschakelde 2-onder-1-kapwoning

Bouwjaar
1993
Geschatte waarde
€ 337.500
Oppervlakte
120 m2
Inhoud
450 m3
Aantal kamers
5 kamers
Slaapkamers
3
Badkamers
1 badkamer en 2 aparte toiletten
Soort bouw
Bestaande bouw
Eigendomssituatie
Volle eigendom
Tuin
Achtertuin en voortuin
Achtertuin
118 m² (14,7m diep en 8m breed)

Voorzieningen in de buurt

Boodschappen0,3 km
Grote supermarkt1,0 km
Cafetaria0,3 km
Restaurant0,7 km
Huisarts0,9 km
Ziekenhuis0,6 km
Kinderdagverblijf0,7 km
BSO0,8 km
Alle voorzieningen in Boslaan en omgeving

Binnenkijken bij Ritmeesterlaan 30 te Veenendaal

Meer meldingen in deze omgeving

Binnenkijken bij
Zondag 16-11-2025
Edelmanlaan 9, 3903XN Veenendaal

Binnenkijken bij
Dinsdag 11-11-2025
Hortensia 18, 3904LW Veenendaal

Nieuw bedrijf
November 2025
Kerkewijk 117, 3904JB Veenendaal

Nieuw bedrijf
November 2025
Kerkewijk 117, 3904JB Veenendaal

Nieuw bedrijf
November 2025
Kerkewijk 117, 3904JB Veenendaal

Binnenkijken bij
Donderdag 30-10-2025
Sparrenlaan 34, 3904KB Veenendaal

Onroerend goed
Woensdag 29-10-2025
Kamperfoelie 1-A, 3904LP Veenendaal

Binnenkijken bij
Woensdag 29-10-2025
Oleander 35, 3904LN Veenendaal

Direct een e-mail ontvangen bij nieuwe meldingen in deze regio?

Meld je dan GRATIS aan voor de Oozo Alert service voor Boslaan en omgeving

Instellen

Meer nieuws in Boslaan en omgeving

Weten hoe eenvoudig het is om af te vallen? Zonder pillen en smeersels en zonder je in het zweet te werken!
Kijk op eenvoudig-afvallen.nl

© 2012 - 2025 OOZO.nl - info@oozo.nl - Gegevens verwijderen? | Disclaimer | Privacy statement