Woning Grote Buitendijk 90 Velserbroek

Grote Buitendijk 90, 1991BA Velserbroek

Ontvang updates voor Weidbuurt

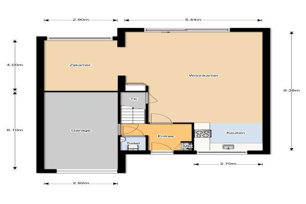
Het adres van deze woning uit 1988 is Grote Buitendijk 90 te Velserbroek. Het pand heeft een oppervlakte van 121m² en een perceeloppervlakte van 246m² en heeft 4 kamers kamers waarvan 3 slaapkamers. De geschatte waarde van deze woning is € 409.000.

Bekijk alle woningen in Weidbuurt

Gegevens van Eengezinswoning, geschakelde woning

Bouwjaar
1988
Geschatte waarde
€ 409.000
Oppervlakte
121 m2
Inhoud
381 m3
Aantal kamers
4 kamers
Slaapkamers
3
Badkamers
1 apart toilet
Soort bouw
Bestaande bouw
Eigendomssituatie
Volle eigendom
Ligging
Vrij uitzicht en open ligging
Tuin
Achtertuin en voortuin
Achtertuin
89 m² (10,5m diep en 8,5m breed)

Voorzieningen in de buurt

Boodschappen0,8 km
Grote supermarkt0,8 km
Cafetaria0,7 km
Restaurant0,9 km
Huisarts0,5 km
Ziekenhuis2,7 km
Kinderdagverblijf0,5 km
BSO0,5 km
Alle voorzieningen in Weidbuurt

Binnenkijken bij Grote Buitendijk 90 te Velserbroek

Meer meldingen in deze omgeving

112 melding
Vrijdag 19-12-2025 om 08:55
Mina Krusemanstraat, 1991TR Velserbroek

112 melding
Donderdag 18-12-2025 om 21:09
Krommeweid, 1991EM Velserbroek

112 melding
Donderdag 18-12-2025 om 13:44
Johanna Westerdijkstraat, 1991SV Velserbroek

112 melding
Donderdag 18-12-2025 om 08:08
Johanna Westerdijkstraat, 1991SV Velserbroek

112 melding
Dinsdag 16-12-2025 om 12:01
Kluut, 1991VB Velserbroek

112 melding
Dinsdag 16-12-2025 om 10:18
Mina Krusemanstraat, 1991TN Velserbroek

112 melding
Dinsdag 16-12-2025 om 09:06
Tureluur, 1991VE Velserbroek

Nieuw bedrijf
December 2025
Mina Krusemanstraat 63, 1991TR Velserbroek

Direct een e-mail ontvangen bij nieuwe meldingen in deze regio?

Meld je dan GRATIS aan voor de Oozo Alert service voor Weidbuurt

Instellen

Meer nieuws in Weidbuurt

Weten hoe eenvoudig het is om af te vallen? Zonder pillen en smeersels en zonder je in het zweet te werken!
Kijk op eenvoudig-afvallen.nl

© 2012 - 2025 OOZO.nl - info@oozo.nl - Gegevens verwijderen? | Disclaimer | Privacy statement