Woning Witherenstraat 7S Venlo

Witherenstraat 7S, 5921GA Venlo

Ontvang updates voor Blerick-Centrum

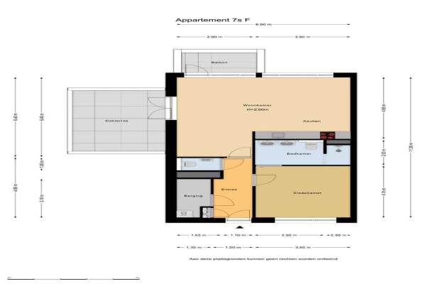
Het adres van deze woning uit 2026 is Witherenstraat 7S te Venlo. Het pand heeft een oppervlakte van 71m² en heeft 2 kamers kamers waarvan 1 slaapkamers. De geschatte waarde van deze woning is € 445.000.

Bekijk alle woningen in Blerick-Centrum

Gegevens van Galerijflat (appartement)

Bouwjaar
2026
Geschatte waarde
€ 445.000
Oppervlakte
71 m2
Inhoud
215 m3
Aantal kamers
2 kamers
Slaapkamers
1
Badkamers
1 apart toilet
Soort bouw
Nieuwbouw
Ligging
In centrum
Tuin
Zonneterras

Voorzieningen in de buurt

Boodschappen0,3 km
Grote supermarkt0,4 km
Cafetaria0,2 km
Restaurant0,3 km
Huisarts0,3 km
Ziekenhuis2,8 km
Kinderdagverblijf0,4 km
BSO0,4 km
Alle voorzieningen in Blerick-Centrum

Binnenkijken bij Witherenstraat 7S te Venlo

Meer meldingen in deze omgeving

Nieuw bedrijf
Oktober 2025
1e Graaf van Loonstraat 17A, 5921JA Venlo

Binnenkijken bij
Woensdag 1-10-2025
Witherenstraat 154, 5921GG Venlo

112 melding
Vrijdag 26-9-2025 om 09:42
2e Graaf van Loonstraat, Venlo

112 melding
Vrijdag 26-9-2025 om 08:44
2e Graaf van Loonstraat, Venlo

Binnenkijken bij
Vrijdag 26-9-2025
Antoniuslaan 104, 5921KE Venlo

Binnenkijken bij
Dinsdag 23-9-2025
Witherenstraat 72, 5921GE Venlo

Binnenkijken bij
Maandag 22-9-2025
Kloosterstraat 19A, 5921HA Venlo

Nieuw bedrijf
September 2025
Wieënstraat 22, 5921HG Venlo

Direct een e-mail ontvangen bij nieuwe meldingen in deze regio?

Meld je dan GRATIS aan voor de Oozo Alert service voor Blerick-Centrum

Instellen

Meer nieuws in Blerick-Centrum

Weten hoe eenvoudig het is om af te vallen? Zonder pillen en smeersels en zonder je in het zweet te werken!
Kijk op eenvoudig-afvallen.nl

© 2012 - 2025 OOZO.nl - info@oozo.nl - Gegevens verwijderen? | Disclaimer | Privacy statement