Woning Ambrosiuslaan 67 Venlo

Ambrosiuslaan 67, 5913SH Venlo

Ontvang updates voor Groeneveld

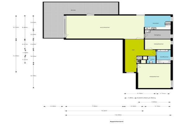
Het adres van deze woning uit 1992 is Ambrosiuslaan 67 te Venlo. Het pand heeft een oppervlakte van 122m² en heeft 6 kamers kamers waarvan 2 slaapkamers. De geschatte waarde van deze woning is € 245.000.

Bekijk alle woningen in Groeneveld

Gegevens van Galerijflat

Bouwjaar
1992
Geschatte waarde
€ 245.000
Oppervlakte
122 m2
Inhoud
335 m3
Aantal kamers
6 kamers
Slaapkamers
2
Soort bouw
Bestaande bouw
Eigendomssituatie
Volle eigendom
Ligging
Aan bosrand, aan water, aan park, aan rustige weg, in woonwijk, vrij uitzicht en in bosrijke omgeving
Tuin
Zonneterras

Voorzieningen in de buurt

Boodschappen0,5 km
Grote supermarkt0,6 km
Cafetaria0,5 km
Restaurant0,6 km
Huisarts0,6 km
Ziekenhuis3,1 km
Kinderdagverblijf0,3 km
BSO0,6 km
Alle voorzieningen in Groeneveld

Binnenkijken bij Ambrosiuslaan 67 te Venlo

Meer meldingen in deze omgeving

Nieuw bedrijf
December 2025
Gebroeders Daelstraat 16, 5913RB Venlo

Nieuw bedrijf
November 2025
Dominee de Jonglaan 20, 5913RL Venlo

Binnenkijken bij
Dinsdag 18-11-2025
Ambrosiuslaan 79, 5913SH Venlo

Binnenkijken bij
Dinsdag 11-11-2025
Ambrosiuslaan 41, 5913SH Venlo

Binnenkijken bij
Dinsdag 11-11-2025
Jan van Broekhuizenstraat 22, 5913RX Venlo

112 melding
Dinsdag 4-11-2025 om 20:47
Groenveldsingel, Venlo

Binnenkijken bij
Woensdag 29-10-2025
Ambrosiuslaan 71, 5913SH Venlo

Binnenkijken bij
Vrijdag 17-10-2025
Harry Meijerstraat 33, 5913RE Venlo

Direct een e-mail ontvangen bij nieuwe meldingen in deze regio?

Meld je dan GRATIS aan voor de Oozo Alert service voor Groeneveld

Instellen

Meer nieuws in Groeneveld

Weten hoe eenvoudig het is om af te vallen? Zonder pillen en smeersels en zonder je in het zweet te werken!
Kijk op eenvoudig-afvallen.nl

© 2012 - 2025 OOZO.nl - info@oozo.nl - Gegevens verwijderen? | Disclaimer | Privacy statement