Woning Gulikstraat 138 Venlo

Gulikstraat 138, 5913CX Venlo

Ontvang updates voor Rijnbeek

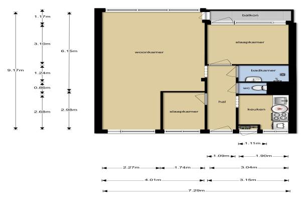
Het adres van deze woning uit 1965 is Gulikstraat 138 te Venlo. Het pand heeft een oppervlakte van 64m² en heeft 4 kamers kamers waarvan 2 slaapkamers. De geschatte waarde van deze woning is € 79.000.

Bekijk alle woningen in Rijnbeek

Gegevens van Tussenverdieping (appartement)

Bouwjaar
1965
Geschatte waarde
€ 79.000
Oppervlakte
64 m2
Inhoud
206 m3
Aantal kamers
4 kamers
Slaapkamers
2
Badkamers
1 badkamer en 1 apart toilet
Soort bouw
Bestaande bouw
Eigendomssituatie
Volle eigendom
Ligging
Aan rustige weg en in woonwijk

Voorzieningen in de buurt

Boodschappen0,4 km
Grote supermarkt0,4 km
Cafetaria0,9 km
Restaurant1,0 km
Huisarts1,3 km
Ziekenhuis3,5 km
Kinderdagverblijf0,3 km
BSO0,3 km
Alle voorzieningen in Rijnbeek

Binnenkijken bij Gulikstraat 138 te Venlo

Meer meldingen in deze omgeving

Faillissement
Donderdag 16-4-2026
Hertog Reinoudsingel 199, 5913XD Venlo

Binnenkijken bij
Dinsdag 14-4-2026
Rijnbeekstraat 362, 5913GP Venlo

Binnenkijken bij
Maandag 13-4-2026
Rijnbeekstraat 412, 5913GP Venlo

Nieuw bedrijf
April 2026
Burgemeester van Liebergenstraat 2, 5913AT Venlo

Binnenkijken bij
Donderdag 2-4-2026
Rijnbeekstraat 290, 5913GH Venlo

Binnenkijken bij
Donderdag 2-4-2026
Burgemeester van Liebergenstraat 12, 5913AT Venlo

Binnenkijken bij
Donderdag 19-3-2026
Gulikstraat 24, 5913CW Venlo

Faillissement
Dinsdag 17-3-2026
Hertog Reinoudsingel 199, 5913XD Venlo

Direct een e-mail ontvangen bij nieuwe meldingen in deze regio?

Meld je dan GRATIS aan voor de Oozo Alert service voor Rijnbeek

Instellen

Meer nieuws in Rijnbeek

Weten hoe eenvoudig het is om af te vallen? Zonder pillen en smeersels en zonder je in het zweet te werken!
Kijk op eenvoudig-afvallen.nl

© 2012 - 2026 OOZO.nl - info@oozo.nl - Gegevens verwijderen? | Disclaimer | Privacy statement