Woning Op den Hamel 23 Venlo

Op den Hamel 23, 5912HW Venlo

Ontvang updates voor Hagerhof-West

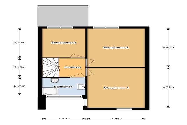
Het adres van deze woning uit 1981 is Op den Hamel 23 te Venlo. Het pand heeft een oppervlakte van 96m² en een perceeloppervlakte van 135m² en heeft 5 kamers kamers waarvan 3 slaapkamers. De geschatte waarde van deze woning is € 149.000.

Bekijk alle woningen in Hagerhof-West

Gegevens van Eengezinswoning, hoekwoning

Bouwjaar
1981
Geschatte waarde
€ 149.000
Oppervlakte
96 m2
Inhoud
360 m3
Aantal kamers
5 kamers
Slaapkamers
3
Badkamers
1 badkamer en 1 apart toilet
Soort bouw
Bestaande bouw
Eigendomssituatie
Volle eigendom
Ligging
In woonwijk
Tuin
Achtertuin en voortuin
Achtertuin
54 m² (0,09m diep en 0,06m breed)

Voorzieningen in de buurt

Boodschappen0,4 km
Grote supermarkt0,3 km
Cafetaria0,3 km
Restaurant0,5 km
Huisarts0,7 km
Ziekenhuis1,0 km
Kinderdagverblijf0,5 km
BSO0,5 km
Alle voorzieningen in Hagerhof-West

Binnenkijken bij Op den Hamel 23 te Venlo

Meer meldingen in deze omgeving

Nieuw bedrijf
Oktober 2025
Anne Frankstraat 162, 5912HJ Venlo

Nieuw bedrijf
Oktober 2025
Mathilde Wibautstraat 18, 5912JJ Venlo

Binnenkijken bij
Zondag 12-10-2025
Anne Frankstraat 226, 5912HK Venlo

Binnenkijken bij
Vrijdag 26-9-2025
Anne Frankstraat 194, 5912HJ Venlo

Binnenkijken bij
Donderdag 25-9-2025
Anne Frankstraat 155, 5912HA Venlo

Nieuw bedrijf
Augustus 2025
Anne Frankstraat 31, 5912HC Venlo

Nieuw bedrijf
Juli 2025
Anne Frankstraat 265, 5912HB Venlo

Binnenkijken bij
Zondag 20-7-2025
De Roskam 99, 5912JR Venlo

Direct een e-mail ontvangen bij nieuwe meldingen in deze regio?

Meld je dan GRATIS aan voor de Oozo Alert service voor Hagerhof-West

Instellen

Meer nieuws in Hagerhof-West

Weten hoe eenvoudig het is om af te vallen? Zonder pillen en smeersels en zonder je in het zweet te werken!
Kijk op eenvoudig-afvallen.nl

© 2012 - 2025 OOZO.nl - info@oozo.nl - Gegevens verwijderen? | Disclaimer | Privacy statement